wróć

Oferta numer: PAN321513

Borkowo, ul. Leśna

410.6 m2 6 pok. 1/2 piętro /m²
Miesięczna rata:

Szacowana rata kredytu przy oprocentowaniu stałym, wkładzie własnym 35% i okresie spłaty 30 lat.

oblicz ratę

Opis

Dom w otulinie lasów oraz jezior- 5 sypialni 410m2

Potężny dom w stanie deweloperskim tuż pod lasem o powierzchni 410 m2 !

Piękna natura – liczne jeziora – przestronny dom w stanie deweloperskim – idealny dla dużej rodziny!

DOM: Na sprzedaż bardzo przestronny, dwukondygnacyjny dom z 2014 roku w stanie deweloperskim
położony w malowniczej scenerii pośród lasów oraz jezior. Budynek został wzniesiony w 2014 roku na kameralnej działce o powierzchni 700,00 m2. Budynek o całkowitej powierzchni 410,60. Nieruchomość oferuje funkcjonalny, przemyślany z możliwością prowadzenia działalności gospodarczej. Do dyspozycji domowników piękna przestrzeń, rozmieszczona na trzech kondygnacjach:

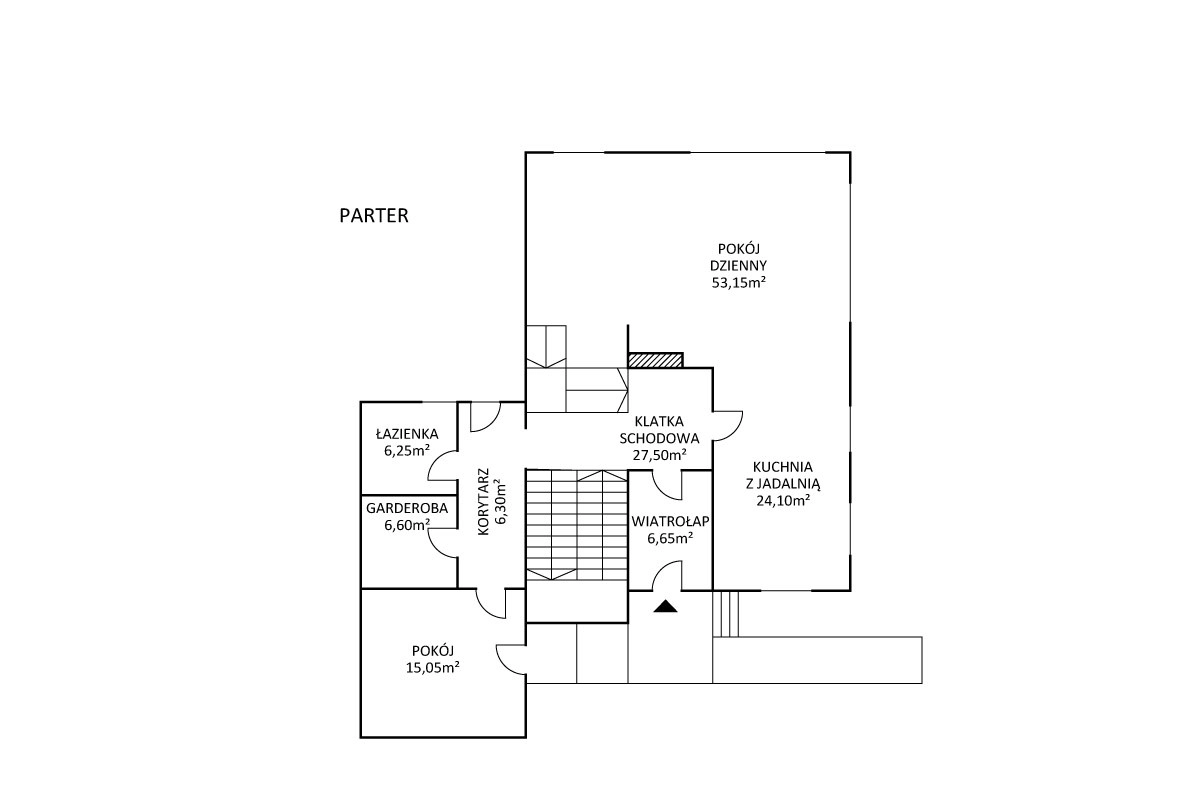
PARTER 146,60 m2: : Serce domu. Przestronny salon łączy się płynnie z kuchnią, tworząc idealne miejsce do spotkań. Na tym poziomie przewidziano również wygodną sypialnię, łazienkę oraz praktyczną pralnię połączoną z garderobą. Do domu wchodzimy przez funkcjonalny wiatrołap.

– salon 53,15 m2,
– kuchnia z jadalnią 24,10 m2,
– pokój 15,05 m2,
– łazienka 6,25 m2,
– garderoba 6,60 m2,
– wiatrołap 6,65 m2,
– korytarz 6,30 m2,
– klatka schodowa 27,50 m2.

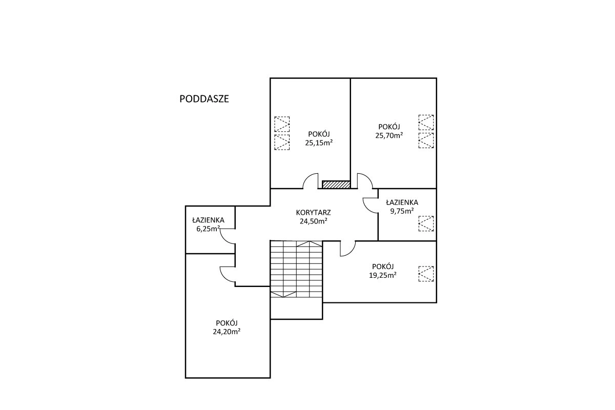
PIĘTRO 121,10 m2: Strefa prywatna. Na tym piętrze zaplanowano cztery duże sypialnie, zapewniające komfort wszystkim domownikom

-4 sypialnie: 25,70 m2, 25,15 m2, 24,20 m2, 19,25 m2,
– 2 łazienki: 9,75 m2 oraz 6,25 m2
– korytarz 24,50 m2.

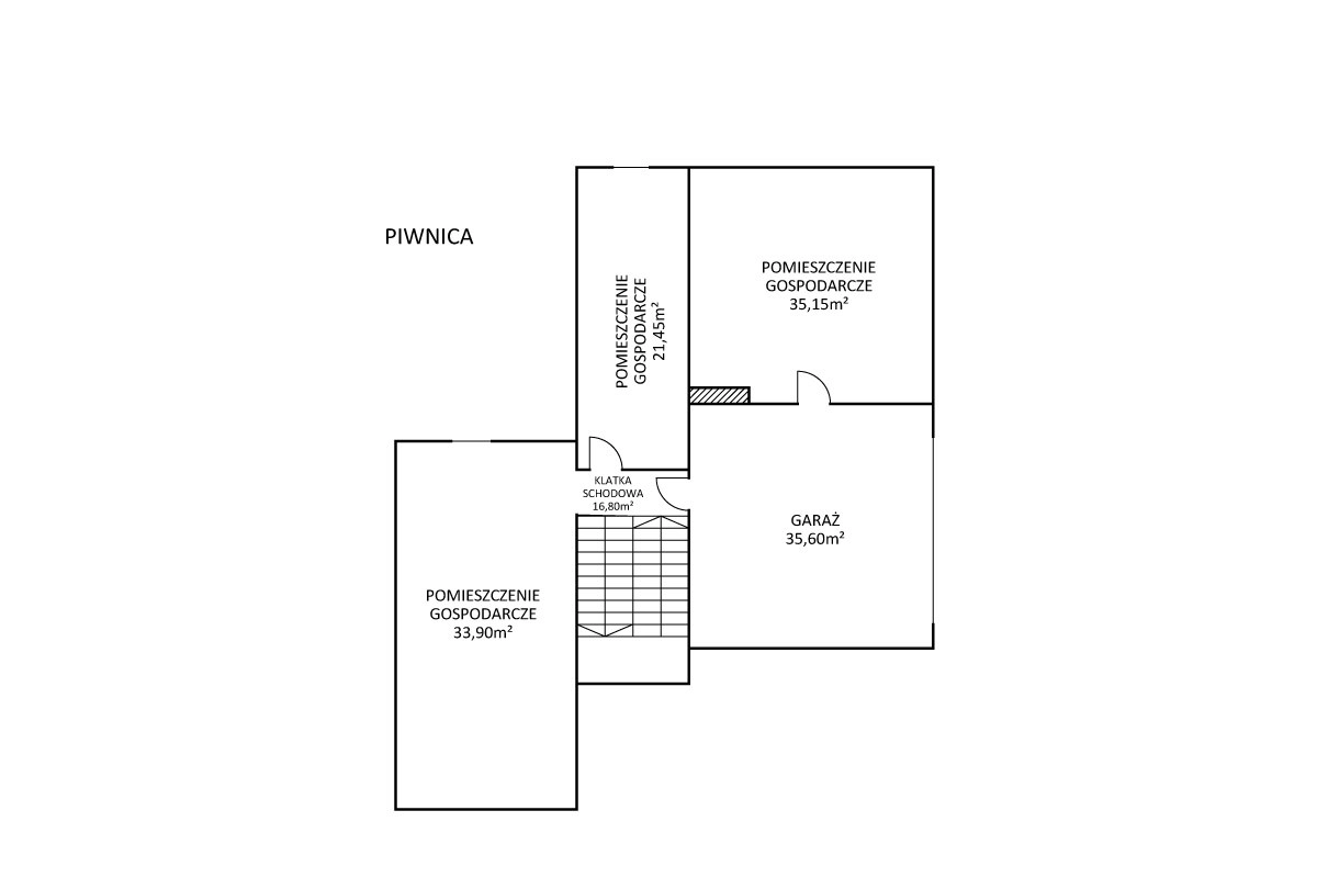
POZIOM – I  142,9 m2: Jest to strefa gospodarcza i rekreacyjna. Znajdą tu Państwo duży, dwustanowiskowy garaż z wygodną bramą o szerokości 5 metrów, sterowaną automatycznie. Ponadto w piwnicy wygospodarowano miejsce na kotłownię z oknem oraz dwa dodatkowe, doświetlone pomieszczenia, które można zaadaptować na spiżarnię, siłownię czy domowe hobby.

— garaż dwustanowiskowy 35,60 m2,
– 3 pomieszczenia gospodarcze: 35,15 m2, 33,90 m2, 21,45 m2,
– klatka schodowa 16,80 m2.

Ta nieruchomość jest idealnym projektem dla architekta wnętrz, oferując możliwość stworzenia unikatowej i w pełni spersonalizowanej przestrzeni od podstaw. To wyjątkowa propozycja dla dużej rodziny, która marzy o komforcie, ale także dla przedsiębiorców poszukujących idealnego miejsca do połączenia życia prywatnego z działalnością zawodową.

Olbrzymie możliwości aranżacyjne to największy atut tej nieruchomości. Stan deweloperski pozwala na stworzenie wnętrz idealnie dopasowanych do indywidualnych potrzeb – od wyboru materiałów, po ostateczny układ funkcjonalny pomieszczeń.

Dzięki niezwykłej kubaturze domu, część parterowa lub cała przestronna piwnica może zostać z łatwością zaadaptowana na cele biznesowe, takie jak luksusowy gabinet, pracownia, kancelaria czy inne usługi.

Niezaprzeczalnym atutem, który znacząco podnosi poczucie przestrzeni i prestiżu, jest ponadstandardowa wysokość pomieszczeń – aż 3,00 metry! Ta cecha gwarantuje doskonałe doświetlenie wnętrz i stwarza niepowtarzalną, luksusową atmosferę, dając architektom swobodę w projektowaniu wysokich elementów dekoracyjnych i oświetleniowych.

LOKALIZACJA: Dom położony w Borowie koło Borkowa Borowo to miejscowość położona pomiędzy Kartuzami a Żukowem, zaledwie 25 km od Trójmiasta (w tym tylko 10 km od lotniska). Dojazd jest komfortowy dzięki nowo wyremontowanej, asfaltowej drodze krajowej (trasa Gdańsk – Kartuzy), prowadzącej bezpośrednio w okolice nieruchomości.

Dom znajduje się na skraju dużego kompleksu leśnego, tuż przy unikatowym i objętym ochroną, malowniczym wąwozie rzeki Raduni, zwanym Jarem Raduni. To idealne miejsce dla miłośników natury. W promieniu 2 km czeka pięć dużych jezior, które oferują różnorodne formy wypoczynku: kąpiele, wędkowanie, długie spacery oraz podziwianie ptaków. Najbliższe Jezioro Karlikowskie jest oddalone o zaledwie 700 metrów.

DOSKONAŁA OFERTA – ZACHĘCAM DO UMÓWIENIA SIĘ NA PREZENTACJĘ ORAZ ZAKUPU DOMU !!

Dane szczegółowe

Lokalizacja

Borkowo, ul. Leśna

Typ budynku

Wolnostojący

Rodzaj własności

Inny

Powierzchnia

410.6 m2

Pow. działki

700 m2

Liczba pokoi

6

Liczba łazienek

3

Liczba toalet

3

Rok budowy

2014

Piętro

1/2

Garaż/miejsce parkingowe

Tak

Stan

Deweloperski

Rodzaj ogrzewania

Inne

Cena za m²

Mapa

krystian micewicz

Zastępca Liderki zespołu, Ekspert ds. sprzedaży nieruchomości  

+48 730 007 034
Potrzebuję więcej informacji
  • Potrzebuję więcej informacji
  • Chcę umówić prezentację

    Klauzula informacyjna

      Preferowany czas spotkania
      • 9:00
      • 10:00
      • 11:00
      • 12:00
      • 13:00
      • 14:00
      • 15:00
      • 16:00
      • 17:00
      • 18:00
      Klauzula informacyjna

        Inne formy zakupu

        Typ nieruchomości*
        • Mieszkanie
        • Dom
        • Działka
        • Komercja
        • Garaż
        Klauzula informacyjna

        Kalkulator raty kredytowej

        Oblicz przybliżoną ratę kredytu hipotecznego

        lat

        Szacowana rata kredytu przy oprocentowaniu stałym, wkładzie własnym 35% i okresie spłaty 30 lat.

        Rata miesięczna:

        Oblicz swoją zdolność z naszym Doradcą ds. kredytów hipotecznych

        Sprawdź swoją zdolność

        Kup z nami. Dlaczego warto?

        0% prowizji od Kupującego

        żadnych dodatkowych i ukrytych kosztów

        * dotyczy ofert oznaczonych znaczkiem Kup bez prowizji

        Gwarantujemy bezpieczny i korzystny zakup

        zadbamy o bezpieczeństwo transakcji i wynegocjujemy najlepszą cenę.

        Posiadamy nowoczesne narzędzia prezentacji ofert

        dedykowana Przestrzeń Klienta z ofertami dopasowanymi do Twoich poszukiwań.

        Oferujemy skuteczną i bezpłatną pomoc w uzyskaniu kredytu

        ograniczymy formalności do minimum i wynegocjujemy najlepsze warunki.

        Agencja nieruchomości Partnerzy