wróć

Oferta numer: PAN323214

Kębłowo, ul.

139.1 m2 5 pok. 0/1 piętro /m²
Miesięczna rata:

Szacowana rata kredytu przy oprocentowaniu stałym, wkładzie własnym 35% i okresie spłaty 30 lat.

oblicz ratę

Opis

Sprzedam dom z garażem – wydanie od zaraz

OFERTA TYLKO W NASZYM BIURZE – 
Na sprzedaż Bliźniak – wydanie od zaraz  
Jeśli szukasz domu z dala od ruchliwej ulicy blisko lasu to ta oferta jest dla ciebie

D O M :
Dom bliźniak w stanie deweloperskim oddany do użytkowania w 2025 roku o całkowitej powierzchni budynku 139,10 m2 oraz użytkowej 104,42 m2
Położony na płaskiej działce o wielkości około 400,00 m2.
Wszystkie pomieszczenia są komfortowo rozmieszczone na 2 kondygnacjach.
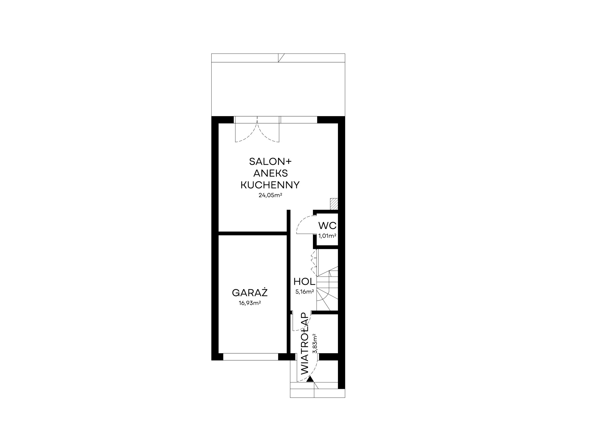
Zestawienie powierzchni w budynku :
P A R T E R
– salon połączony z kuchnią oraz częścią jadalnianą z wyjściem na taras i ogród,
– osobne w-c
– wiatrołap wraz z holem i schodami.
– garaż
P I Ę T R O :
– cztery ustawne osobne sypialnie
– przestronna łazienka
– komunikacja
STRYCH – wysoki do zagospodarowania; ocieplone wełną mineralną z oknem.
Dom wybudowano z wysoką dbałością i starannością.
Do ocieplenia domu użyto styropianu o grubości 20 cm.
Na dachu blachodachówka.
Do ogrzewania domu zainstalowano pompę ciepła z 200 litrowym zasobnikiem na ciepłą wodę.
W całym domu rozprowadzone ogrzewanie podłogowe ze sterowaniem wszystkich pomieszczeń osobno lub całości
Zostało zamontowana instalacja alarmowa.
Garaż w bryle budynku i miejsca postojowe przed domem
Podjazd oraz komunikacja wokół budynki wyłożona kostką brukową od frontu budynku dodatkowo zielone nasadzenia.
Ogród obsadzony trawą
Możliwość szybkiego wydania.

L O K A L I Z A C J A :
Kębłowo położone jest w gminie Luzino, zaledwie 9 km od centrum Wejherowa.
Doskonałe połączenie komunikacyjne z Trójmiastem zarówno samochodem Dzięki Trasie Kaszubskiej jak i komunikacją miejską.
W promieniu 10 min pieszo od nieruchomości oferowanej znajduje się Kościół, szkoła podstawowa, przedszkole sklepy spożywcze, apteka.

ZAPRASZAM NA PREZENTACJĘ

Dane szczegółowe

Lokalizacja

Kębłowo, ul.

Typ budynku

Bliźniak

Rodzaj własności

Inny

Powierzchnia

139.1 m2

Pow. działki

400 m2

Liczba pokoi

5

Liczba łazienek

1

Liczba toalet

1

Rok budowy

2025

Piętro

0/1

Balkon/taras

Tak

Garaż/miejsce parkingowe

Tak

Stan

Bardzo dobry

Rodzaj ogrzewania

Pompa ciepła

Cena za m²

Mapa

Potrzebuję więcej informacji
  • Potrzebuję więcej informacji
  • Chcę umówić prezentację

    Klauzula informacyjna

      Preferowany czas spotkania
      • 9:00
      • 10:00
      • 11:00
      • 12:00
      • 13:00
      • 14:00
      • 15:00
      • 16:00
      • 17:00
      • 18:00
      Klauzula informacyjna

        Inne formy zakupu

        Typ nieruchomości*
        • Mieszkanie
        • Dom
        • Działka
        • Komercja
        • Garaż
        Klauzula informacyjna

        Kalkulator raty kredytowej

        Oblicz przybliżoną ratę kredytu hipotecznego

        lat

        Szacowana rata kredytu przy oprocentowaniu stałym, wkładzie własnym 35% i okresie spłaty 30 lat.

        Rata miesięczna:

        Oblicz swoją zdolność z naszym Doradcą ds. kredytów hipotecznych

        Sprawdź swoją zdolność

        Kup z nami. Dlaczego warto?

        0% prowizji od Kupującego

        żadnych dodatkowych i ukrytych kosztów

        * dotyczy ofert oznaczonych znaczkiem Kup bez prowizji

        Gwarantujemy bezpieczny i korzystny zakup

        zadbamy o bezpieczeństwo transakcji i wynegocjujemy najlepszą cenę.

        Posiadamy nowoczesne narzędzia prezentacji ofert

        dedykowana Przestrzeń Klienta z ofertami dopasowanymi do Twoich poszukiwań.

        Oferujemy skuteczną i bezpłatną pomoc w uzyskaniu kredytu

        ograniczymy formalności do minimum i wynegocjujemy najlepsze warunki.

        Agencja nieruchomości Partnerzy