Opis
Segment środkowy 5 pokoi, ogródek, garaż
DOM 6 pokojowy W ZABUDOWIE SZEREGOWEJ SEGMENT ŚRODKOWY
Z OGRÓDKIEM i GARAŻEM Budynek B
GOTOWE POD ODBIORACH
LOKALIZACJA
Inwestycja znajduje się w wyjątkowo ciekawej lokalizacji, w bliskim sąsiedztwie centrum Gdańska- 10 minut od Starego Miasta, a z drugiej strony w kameralnej części jego dzielnicy, w otoczeniu domów jednorodzinnych.
INWESTYCJA:
Inwestycja stanowi trzy lokale mieszkalne w zabudowie szeregowej.
NIERUCHOMOŚĆ
Budynek 5 pokojowy dwu poziomowy o łącznej pow. 148,55m2 z garażem i poddaszem użytkowym w stanie deweloperskim.
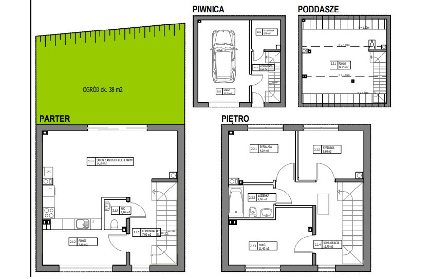
Z tyłu budynku ogródek 38m2.
W skład domu wchodzi:
PARTER
– Salon z aneksem kuchennym 27,50m2
– pokój 7,80m2
– WC 1,9m2
– Korytarz 7,9m2
PIĘTRO
– Sypialnia nr 1 pow. 9,20m2
– Sypialnia nr 2 pow. 8,5m2
– Sypialnia nr 3 pow. 11,4m2
– Łazienka 4m2
– Korytarz 11,40m2
PODDASZE
– Sypialnia nr 4 pow. 14,95m2
GARAŻ 29,7m2 + PIWNICA (KOTŁOWNIA 6m2), Korytarz 8,2m2
DODATKOWO
– Rynek pierwotny zakup bez podatku PCC
– Ogrzewanie: piec gazowy dwu funkcyjny
– Umowa deweloperska
ZAPRASZAM NA PREZENTACJĘ