wróć

Oferta numer: PAN686679

Straszyn, ul. Zwrotnikowa

198 m2 4 pok. 0/1 piętro /m²
Miesięczna rata:

Szacowana rata kredytu przy oprocentowaniu stałym, wkładzie własnym 35% i okresie spłaty 30 lat.

oblicz ratę

Opis

Skrajny szereg w Straszynie, spokojne otoczenie

UWAGA! Planowane zakończenie budowy to koniec 2025 roku

INFORMACJA:
Sprzedawana nieruchomość to część kameralnej inwestycji “Straszyn Zwrotnikowa” położonej w otoczeniu lasów. Inwestycja składa się z dwóch bliźniaków w zabudowie szeregowej o pięknej architekturze. Przedmiotem sprzedaży jest lokal mieszkalny z ogródkiem do własnej dyspozycji i garażem na 2 samochody. 

DOM:
Budowany w Straszynie, nieopodal rzeki Radunia i ok. 1,5 km od Jeziora Straszyńskiego. Do najbliższego węzła Obwodnicy Trójmiejskiej ok. 3 km, a stamtąd dogodny dojazd do całej Gdańska, Gdyni i Sopotu. Dobry dojazd również na Kaszuby.
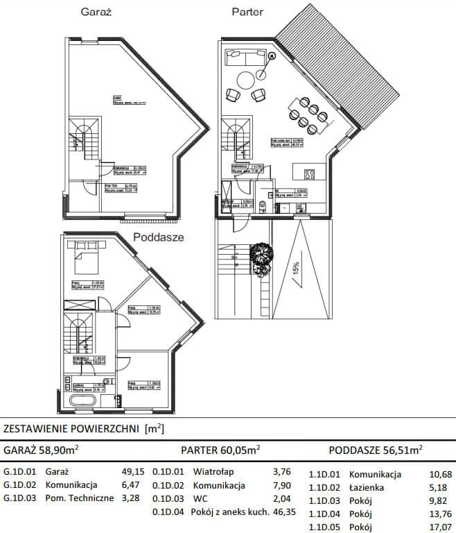
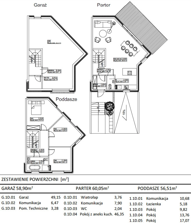
Powierzchnia użytkowa to ok. 117 m2, natomiast łącznie z powierzchnią kondygnacji garażowej na 2 samochody (jeden za drugim) to łącznie ok. 175 m2. Planowane oddanie do użytkowania to przełom 2024/2025 roku.

PARTER składa się z:
– dużego salonu dziennego z aneksem kuchennym o pow. łącznej ok. 46 m2 z wyjściem do ogrodu; z boku pokoju schody prowadzące na piętro,
– toalety o pow. ok. 2 m2,
– komunikacji i wiatrołapu o łącznej pow. ok. 12 m2,
PIĘTRO składa się z:
– 3 pokoi o pow. odpowiednio ok. 17 m2, 14 m2 i 10 m2,
– łazienki o pow. ok. 5 m2,
– komunikacji o pow. ok. 11 m2,
PIWNICA to powierzchnia garażowa:
– garaż na 2 samochody (jeden za drugim) o pow. ok. 49 m2,
– pom. techniczne o pow. ok. 3 m2,
– komunikacja o pow. ok. 6 m2.

OGRÓD:
Skrajny szereg, ogródek obsadzony trawnikiem i ogrodzony siatką panelową. Od frontu brak ogrodzenia, dwa murki odgradzające wejście do domu i wjazd do garażu. Na posesji wkopany zbiornik na deszczówkę.

OKOLICA:
W pobliżu wiele miejsc spacerowych i rekreacyjnych. Odległość od centrum Gdańska to ok. 10 km, od centrum handlowego ok. 2 km, od przedszkola ok. 1,4 km, od szkoły ok. 2,8 km.

POZOSTAŁE INFORMACJE:
– całość wykonywana będzie z materiałów wysokiej jakości, ściany zewnętrzne to Silka 24 cm docieplona grafitowym styropianem 15 cm, okna PCV 3-szybowe, pod wjazdem do garażu ułożony kabel grzewczy,
– ogrzewanie i ciepła woda użytkowa za pomocą pieca gazowego,
– okna PCV 3-szybowe,
– monitoring z 2 kamerami, od strony ulicy i ogrodu,
– do domu doprowadzony światłowód,
– podany metraż 198 m2 różni się od powierzchni pokazanych w galerii rzutów przede wszystkim ze względu na dodatkowo wygospodarowane pod tarasem pomieszczenie o funkcji gospodarczej.

Zapraszam na prezentację!

Dane szczegółowe

Lokalizacja

Straszyn, ul. Zwrotnikowa

Typ budynku

Segment skrajny

Rodzaj własności

Inny

Powierzchnia

198 m2

Pow. działki

310 m2

Liczba pokoi

4

Liczba łazienek

1

Liczba toalet

1

Rok budowy

2024

Piętro

0/1

Balkon/taras

Tak

Garaż/miejsce parkingowe

Tak

Stan

Deweloperski

Rodzaj ogrzewania

CO własne

Cena za m²

Mapa

Potrzebuję więcej informacji
  • Potrzebuję więcej informacji
  • Chcę umówić prezentację

    Klauzula informacyjna

      Preferowany czas spotkania
      • 9:00
      • 10:00
      • 11:00
      • 12:00
      • 13:00
      • 14:00
      • 15:00
      • 16:00
      • 17:00
      • 18:00
      Klauzula informacyjna

        Inne formy zakupu

        Typ nieruchomości*
        • Mieszkanie
        • Dom
        • Działka
        • Komercja
        • Garaż
        Klauzula informacyjna

        Kalkulator raty kredytowej

        Oblicz przybliżoną ratę kredytu hipotecznego

        lat

        Szacowana rata kredytu przy oprocentowaniu stałym, wkładzie własnym 35% i okresie spłaty 30 lat.

        Rata miesięczna:

        Oblicz swoją zdolność z naszym Doradcą ds. kredytów hipotecznych

        Sprawdź swoją zdolność

        Kup z nami. Dlaczego warto?

        0% prowizji od Kupującego

        żadnych dodatkowych i ukrytych kosztów

        * dotyczy ofert oznaczonych znaczkiem Kup bez prowizji

        Gwarantujemy bezpieczny i korzystny zakup

        zadbamy o bezpieczeństwo transakcji i wynegocjujemy najlepszą cenę.

        Posiadamy nowoczesne narzędzia prezentacji ofert

        dedykowana Przestrzeń Klienta z ofertami dopasowanymi do Twoich poszukiwań.

        Oferujemy skuteczną i bezpłatną pomoc w uzyskaniu kredytu

        ograniczymy formalności do minimum i wynegocjujemy najlepsze warunki.