wróć

Oferta numer: PAN366782

Władysławowo

99.88 m2 2 pok. 2/2 piętro /m²
Miesięczna rata:

Szacowana rata kredytu przy oprocentowaniu stałym, wkładzie własnym 35% i okresie spłaty 30 lat.

oblicz ratę

Opis

Nowe mieszkania z antresolą we Władysławowie

Nowe mieszkania od dewelopera
Kup bez prowizji i podatku PCC

W budynku do sprzedaży będą mieszkania o zróżnicowanej powierzchni- od 32, 08 m2 do 99,88 m2.
Mieszkania z  antresolą 

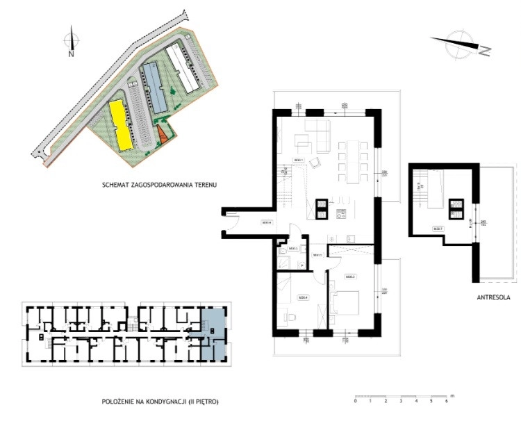
Prezentowane mieszkanie jest największym mieszkaniem znajdującym się na drugim piętrze i składające się:
– z salonu z aneksem kuchennym o powierzchni 51,21 m2 z wyjściem na duży balkon,
– sypialni 16,47 m2, z wyjściem na duży balkon,
– II sypialni 12,44 m2
– łazienki 3,71 m2,
– antresola 9,01 m2 z wyjściem na balkon
Ogrzewanie podłogowe, zainstalowane czujniki dymu i doprowadzony światłowód.
Jeśli jesteście Państwo zainteresowani innym metrażem apartamentu, zapraszam do kontaktu oraz na prezentację na miejscu.
W ofercie zamieszczono zdjęcia poglądowe w bloku oddanego wcześniej do użytku.

BUDYNEK
Bałtyckie Tarasy to najnowsza, prestiżowa inwestycja znanego dewelopera – firmy Orlex.
Apartamentowiec zostanie oddany do użytku w IV kwartale 2026 roku. Budowany jest on z materiałów najwyższej jakości, z ogromną dbałością o szczegóły i nowoczesny designe. Na parterze budynku mieszkańcy będą mieli do dyspozycji ogródki, zaś na ostatniej kondygnacji tarasy i mieszkania z antresolą.
W budynku o przestronnej klatce schodowej znajdować się będzie cichobieżna widna.

Lokalizacja:
Osiedle Bałtyckie Tarasy zlokalizowana we Władysławowie. Do centrum Władysławowa można dojść pieszo w około 20minut, do plaży zaś w 30 minut. Z kolei do Pucka i Półwyspu Helskiego dojechać można z łatwością samochodem. Stacja kolejowa Władysławowo oraz pobliski dworzec PKS są oddalone od osiedla o 2 kilometry. Dojazd do centrum Gdyni zajmuje około 60 minut.
W pobliżu dyskont spożywczy Biedronka- 10 minut spacerkiem.
Doskonałe miejsce na całoroczny wypoczynek. W sezonie letnim cicho i spokojnie.

KUPUJĄCY NIE PŁACI PROWIZJI DLA BIURA!
PLANOWANA REALIZACJA INWESTYCJI 2026 R. IV KWARTAŁ
KUPUJĄCY NIE PŁACI 2% PCC.

ZADZWOŃ I DOWIEDZ SIĘ WIĘCEJ !!!

Dane szczegółowe

Lokalizacja

Władysławowo

Typ budynku

Blok

Rodzaj własności

Inny

Powierzchnia

99.88 m2

Liczba pokoi

2

Liczba łazienek

1

Liczba toalet

1

Rok budowy

2026

Piętro

2/2

Winda

Tak

Balkon/taras

Tak

Garaż/miejsce parkingowe

Tak

Prąd

Tak

Woda

Tak

Kanalizacja

Tak

Stan

Deweloperski

Rodzaj ogrzewania

Gazowe

Cena za m²

Mapa

Potrzebuję więcej informacji
  • Potrzebuję więcej informacji
  • Chcę umówić prezentację

    Klauzula informacyjna

      Preferowany czas spotkania
      • 9:00
      • 10:00
      • 11:00
      • 12:00
      • 13:00
      • 14:00
      • 15:00
      • 16:00
      • 17:00
      • 18:00
      Klauzula informacyjna

        Inne formy zakupu

        Typ nieruchomości*
        • Mieszkanie
        • Dom
        • Działka
        • Komercja
        • Garaż
        Klauzula informacyjna

        Kalkulator raty kredytowej

        Oblicz przybliżoną ratę kredytu hipotecznego

        lat

        Szacowana rata kredytu przy oprocentowaniu stałym, wkładzie własnym 35% i okresie spłaty 30 lat.

        Rata miesięczna:

        Oblicz swoją zdolność z naszym Doradcą ds. kredytów hipotecznych

        Sprawdź swoją zdolność

        Kup z nami. Dlaczego warto?

        0% prowizji od Kupującego

        żadnych dodatkowych i ukrytych kosztów

        * dotyczy ofert oznaczonych znaczkiem Kup bez prowizji

        Gwarantujemy bezpieczny i korzystny zakup

        zadbamy o bezpieczeństwo transakcji i wynegocjujemy najlepszą cenę.

        Posiadamy nowoczesne narzędzia prezentacji ofert

        dedykowana Przestrzeń Klienta z ofertami dopasowanymi do Twoich poszukiwań.

        Oferujemy skuteczną i bezpłatną pomoc w uzyskaniu kredytu

        ograniczymy formalności do minimum i wynegocjujemy najlepsze warunki.

        Agencja nieruchomości Partnerzy