wróć

Oferta numer: PAN412777

Gdynia, Śródmieście, ul. Świętojańska

87.5 m2 4 pok. 1/4 piętro /m²
Miesięczna rata:

Szacowana rata kredytu przy oprocentowaniu stałym, wkładzie własnym 35% i okresie spłaty 30 lat.

oblicz ratę

Opis

Mieszkanie na Świętojańskiej

LOKAL MIESZKALNY LUB BIUROWO – USŁUGOWY
PROJEKT NA STWORZENIE 4 samodzielnych apartamentów. 
NOWA WINDA

LOKALIZACJA:
Lokal znajduje się w ścisłym CENTRUM GDYNI przy jednej z najbardziej popularnych ulic, ul. Świętojańskiej.

BUDYNEK
Kamienica z lat ’30 w bardzo dobrym stanie, przez kilka lat funkcjonująca jako placówka bankowa od parteru po pierwsze piętro. 

MIESZKANIE
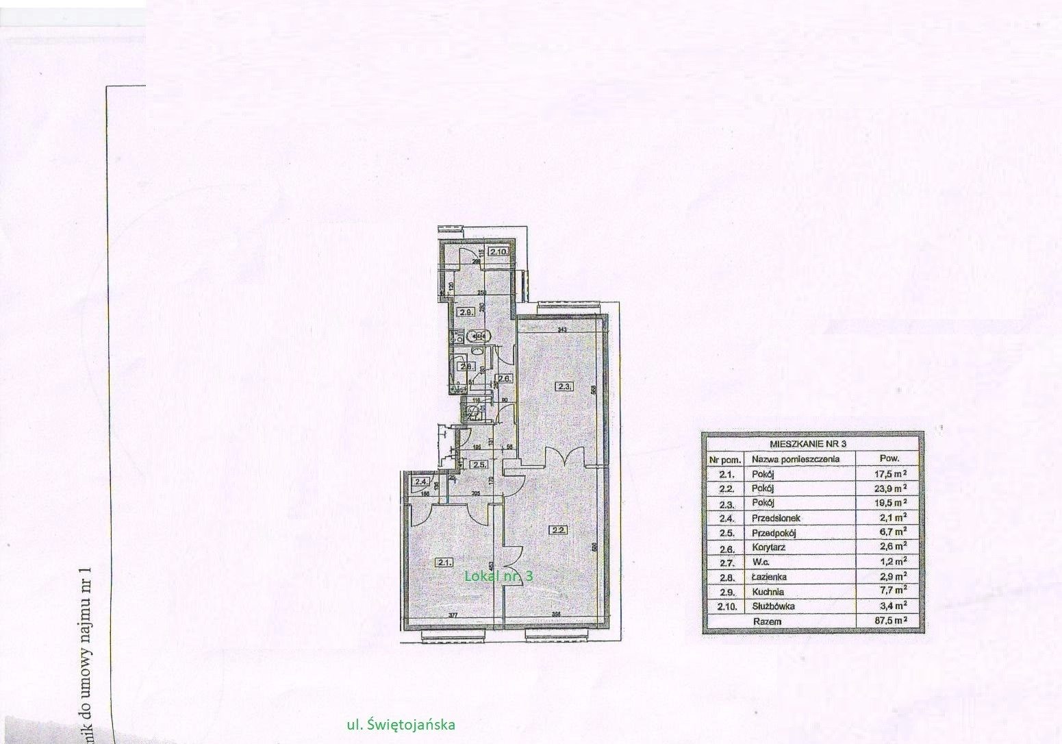
Mieszkanie na I piętrze o pow. 87,5 m2, oryginalnie 4 pokojowy plus piwnica 93,5m2 przez wiele pełniąca funkcję archiwum banku.

W skład mieszkania/biura wchodzi:
– 4 POKÓJE
– KUCHNIA
– ŁAZIENKA 
– PRZEDSIONEK 
– WC 
– PRZEDPOKÓJ 

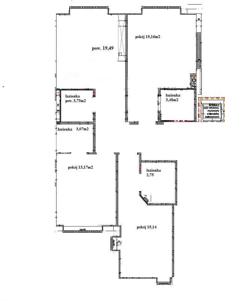
Obecnie w trakcie realizacji jest projekt architektoniczny mający na celu uzyskanie pozwolenia na przebudowę przedmiotowego lokalu na 4 samodzielne apartamenty inwestycyjne – każdy będzie miał niezależne wejście z korytarza, osobną łazienkę oraz aneks kuchenny.

DODATKOWO
– Miejskie miejsca postojowe
dla klientów i użytkowników lokali bezpośrednio przy wejściu do budynku.
–  Wysoki standard wykończenia całej kamienicy ( nowa elewacja , nowe okna , nowa winda ) 
– piwnica ( magazyn archiwum) o pow. 93,5m2 
w idealnym stanie
–  ogrzewanie miejskiej i ciepła woda miejska
– cena ofertowa jest ceną netto, VAT 23% lub PCC bez podatku VAT.

ZAPRASZAM NA PREZENTACJĘ

Dane szczegółowe

Lokalizacja

Gdynia, Śródmieście, ul. Świętojańska

Typ budynku

Kamienica

Rodzaj własności

Inny

Powierzchnia

87.5 m2

Liczba pokoi

4

Liczba łazienek

1

Rok budowy

1930

Piętro

1/4

Winda

Tak

Garaż/miejsce parkingowe

Tak

Stan

Do odświeżenia

Rodzaj ogrzewania

CO miejskie

Cena za m²

Mapa

Potrzebuję więcej informacji
  • Potrzebuję więcej informacji
  • Chcę umówić prezentację

    Klauzula informacyjna

      Preferowany czas spotkania
      • 9:00
      • 10:00
      • 11:00
      • 12:00
      • 13:00
      • 14:00
      • 15:00
      • 16:00
      • 17:00
      • 18:00
      Klauzula informacyjna

        Inne formy zakupu

        Typ nieruchomości*
        • Mieszkanie
        • Dom
        • Działka
        • Komercja
        • Garaż
        Klauzula informacyjna

        Kalkulator raty kredytowej

        Oblicz przybliżoną ratę kredytu hipotecznego

        lat

        Szacowana rata kredytu przy oprocentowaniu stałym, wkładzie własnym 35% i okresie spłaty 30 lat.

        Rata miesięczna:

        Oblicz swoją zdolność z naszym Doradcą ds. kredytów hipotecznych

        Sprawdź swoją zdolność

        Kup z nami. Dlaczego warto?

        0% prowizji od Kupującego

        żadnych dodatkowych i ukrytych kosztów

        * dotyczy ofert oznaczonych znaczkiem Kup bez prowizji

        Gwarantujemy bezpieczny i korzystny zakup

        zadbamy o bezpieczeństwo transakcji i wynegocjujemy najlepszą cenę.

        Posiadamy nowoczesne narzędzia prezentacji ofert

        dedykowana Przestrzeń Klienta z ofertami dopasowanymi do Twoich poszukiwań.

        Oferujemy skuteczną i bezpłatną pomoc w uzyskaniu kredytu

        ograniczymy formalności do minimum i wynegocjujemy najlepsze warunki.

        Agencja nieruchomości Partnerzy