Opis
Duże mieszkanie inwestycyjne-15min od ul. Długiej
Wyjątkowe mieszkanie, po generalnym remoncie w kamienicy w centrum Gdańska.
Mieszkanie ma wymienione wszystkie instalacje: hydraulika, C.O., elektryka, gaz oraz nowe okna PCV, nowy piec dwufunkcyjny gazowy, nowe wkłady kominowe, cyklinowane i polakierowane podłogi drewniane ( stara deska).
LOKALIZACJA
Mieszkanie znajduje się w południowej spokojniejszej części Śródmieścia Gdańska w pobliżu kanału Motławy oraz fortyfikacji Bastion Żubr . W pobliżu wiele różnych atrakcji turystycznych starego miasta i pełna infrastruktura usługowo-komunikacyjna między innymi :
-kawiarni i restauracji przy np. Łąkowej,
– po przeciwnej tronie ulicy kultowa piekarnia Ryszard Majchrowski,
– fontanna Neptuna 950 metrów,
– Wyspa Spichrzów 500 metrów,
– przystanek SKM 650 metrów,
– przy kamienicy przystanek autobusowy
MIESZKANIE
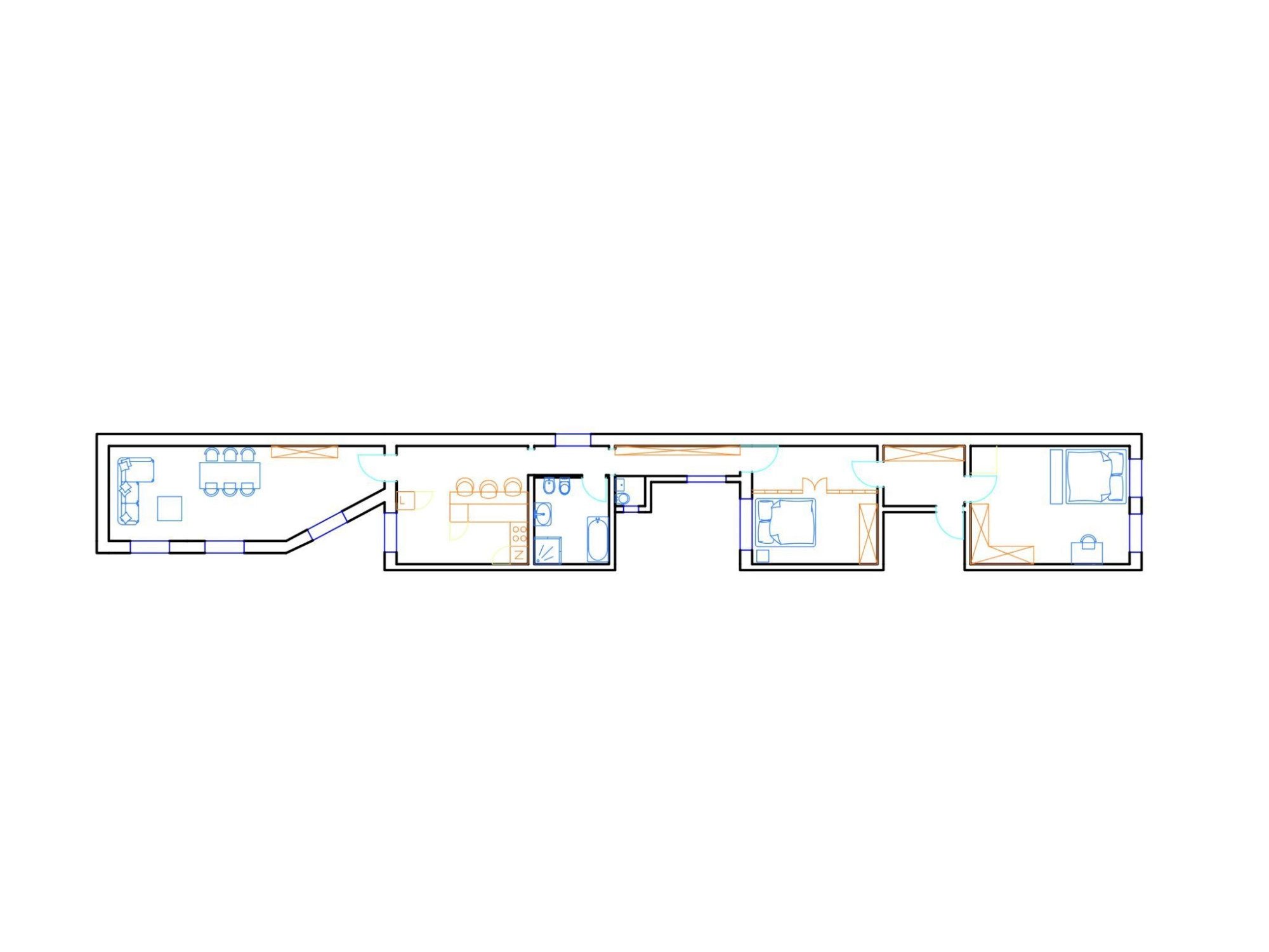
O powierzchni 101,64 m2 – 3 pokojowe z osobną kuchnią , łazienką i WC. Mieszkanie znajduje się na 3 piętrze .
Wyposażenie:
– pokój po prawej: ( duże biurko z zabudowy drewnianej) + krzesła w stylu bauhaus, regał, szafa z lustrem, mała sofa rozkładana,
– przedpokój: lustro wiszące, krzesło,
– sypialnia: łóżko 160×200 z materacem, szafa narożna w zabudowie,
– WC z oknem: toaleta, szafka podwieszana z umywalką, kaloryfer,
– łazienka: wanna z opcja prysznica ponieważ jest zamontowana szyba, WC, bidet, umywalka z szafką podwieszana, piec gazowy zabudowany szafą,
– kuchnia: szafki kuchenne oraz blat wyłożony mozaiką, płyta indukcyjna, piekarnik, zmywarka 45 cm, zlew, lodówka wolnostojąca, wózek, półka na ceramikę,
– salon: kanapa sztruksowa z mobilną pufa, stolik kawowy, szafki wiszące, duży owalny stół, krzesła bauhaus 4 sztuki, istnieje możliwość zawieszenie TV na ścianie na przeciwko sofy ( jest tam przygotowana instalacja).
BUDYNEK
Kamienica z 1980r po rewitalizacji w bardzo dobrym stanie , na klatce 9 mieszkań . Przed budynkiem ogólnodostępne miejsca parkingowe. Kamienica posiada strych dostępny dla wszystkich mieszkańców gdzie można wydzielić dodatkowe miejsce do przechowywania.
Mieszkanie idealne dla:
– studenta lub studentów w funkcji co-living,
– pary lub pary z dziećmi,
– firmy prowadzącej nieuciążliwą działalność gospodarczą,
– inwestora jako lokata kapitału, dzielnica prężnie rewitalizowana:
Dwadzieścia jeden kamienic zyskało nowe oblicze po remontach zrealizowanych w ramach rewitalizacji. Trwają również prace m.in. nad przebudową kilku dróg, przystosowaniem lokali dla organizacji społecznych oraz zagospodarowaniem przestrzeni publicznych.