Opis
Mieszkanie 3 pokojowe na 3 piętrze, balkon 5,76
Mieszkania w trakcie odbiorów
MIESZKANIE 3 POKOJOWE NA 3 PIĘTRZE Z BALKONEM 5,76, WINDA, SIŁOWNIA, KOMÓRKA, HALA GARAŻOWA, MOŻLIOWOŚĆ ŁADOWANIA AUTA ELEKTRYCZNEGO
LOKALIZACJA
Nieruchomość położona jest przy ul. Krawieckiej w Gdyni w dzielnicy Obłuże. Znakomita lokalizacja skąd mamy 3 min do Estakady Kwiatkowskiego, 20 min rowerem do centrum Gdyni, około 200m do przystanku autobusowego.
BUDYNEK
Budynek z 2025r. 3 piętrowy, składający się z 28 mieszkań. W budynku znajdziemy wspólną przestrzeń dla mieszkańców, siłownie, stojaki na rowery, w garażu podziemnym punkty ładowania pojazdów elektrycznych
MIESZKANIE
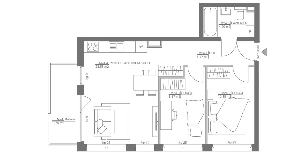
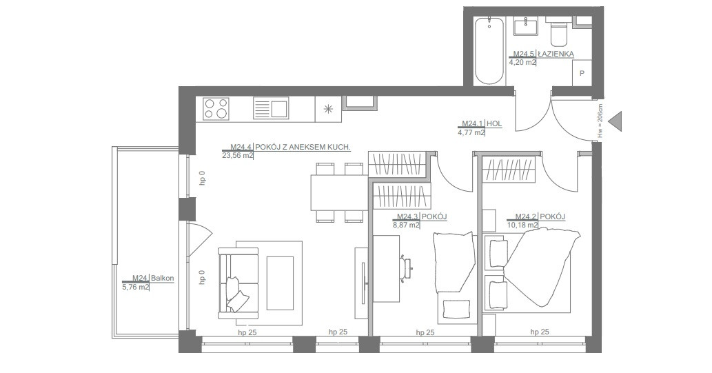
Mieszkanie na 3 piętrze 3 pokojowe o pow. 51,58m2 z balkonem 5,76m2
W skład mieszkania wchodzi:
– Salon z aneksem kuchennym 23,56m2
– 1 sypialnia 8,87m2
– 2 sypialnia 10,18m2
– Łazienka 4,20m2
– Korytarz 4,77m2
BALKON 5,76m2
Mieszkanie w stanie deweloperskim.
DODATKOWO
Ogrzewanie podłogowe ( piec gazowy)
Cena miejsca garażowego – 45.000 zł;
Cena miejsca postojowego zewnętrznego – 30.000 zł;
Cena komórki lokatorskiej – 5.400 zł/m2
Zapraszamy na prezentację