wróć

Oferta numer: PAN110241

Sopot, Wyścigi, ul. Rzemieślnicza

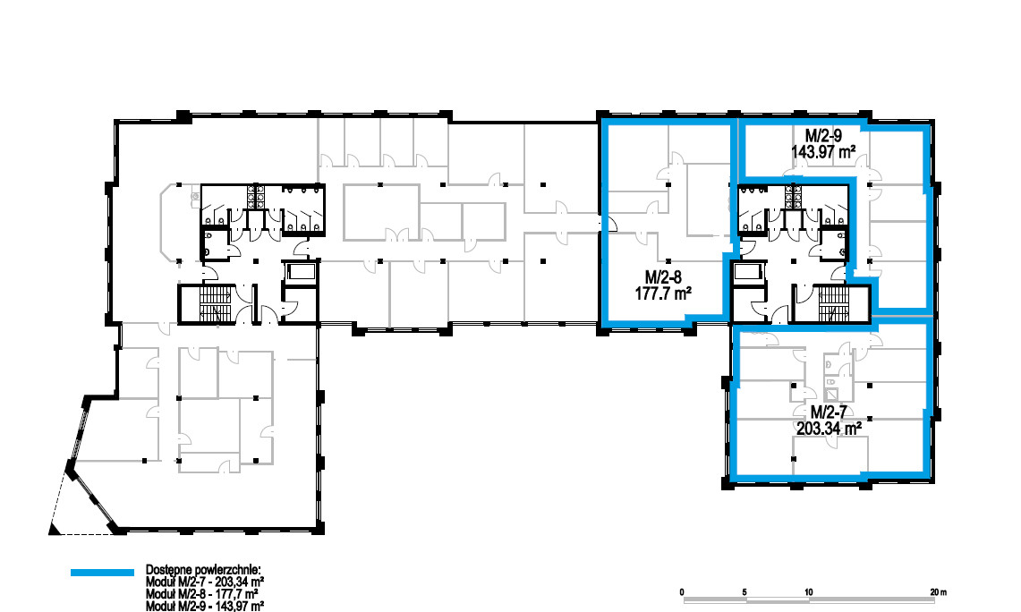
177.7 m2 1/3 piętro /m²
lokal komercyjny wynajem

Opis

Lokal biurowy doskonały na siedzibę firmy

Oferujemy na wynajem powierzchnie biurowe w nowoczesnym biurowcu w Sopocie. Nieruchomość gotowa do użytku.

LOKALIZACJA:

Budynek usytuowany blisko głównej arterii komunikacyjnej Trójmiasta. Lokalizacja na pograniczu Gdańska z Sopotem. Miejsce doskonale skomunikowane, pełen dostęp do wszystkich środków komunikacji publicznej.

LOKAL:

Wysokość pomieszczeń 3,0 m.
Podłoga techniczna.
Instalacja wentylacyjna z modułem chłodzącym.
Światłowód doprowadzony do modułów.
Możliwość podłączenia instalacji teletechnicznej od wybranych operatorów.
Kontrola dostępu do modułów biurowych.
Okna otwieralno-uchylne
Indywidualne podliczniki zużycia energii elektrycznej w modułach.

OBIEKT:

Budynek nowoczesny, bardzo funkcjonalny, przystosowany również dla osób niepełnosprawnych.
Na poziomie 0, reprezentacyjna recepcja z lobby. W budynku całodobowa ochrona.
Obiekt wyposażenie w kontrolę dostępu. Teren wygrodzony, wjazd kontrolowany (szlaban)
CCTV / monitoring
W obiekcie garaż podziemny oraz parking zewnętrzny.
Winda
Ogrzewanie gazowe.

INFORMACJE DODATKOWE:

Podana stawka najmu jest wartością netto.
Kaucja zabezpieczająca: wysokość 1-miesięcznego czynszu.
Czynsz najmu zawiera koszty eksploatacyjne, media, obsługę recepcji, usługę sprzątania, dostęp do części wspólnej
Okres najmu min. 1 rok
Możliwość szybkiej i prostej zmiany wielkości przestrzeni
Miejsca parkingowe podziemne / naziemne – dostępne za dodatkową opłatą (300 / 150 zł netto miesięcznie za miejsce)
Istnieją dostępne dodatkowe powierzchnie, bezpośrednio sąsiadujące z lokalem, dzięki czemu można uzyskać większą powierzchnię do dyspozycji najemcy. Biura dostępne w modułach od 140 m2 do 420 m2.

Zapraszamy do kontaktu.

Dane szczegółowe

Lokalizacja

Sopot, Wyścigi, ul. Rzemieślnicza

Typ komercji

Biuro

Rodzaj własności

Inny

Powierzchnia

177.7 m2

Rok budowy

2010

Piętro

1/3

Rodzaj ogrzewania

Gazowe

Cena za m²

Mapa

Potrzebuję więcej informacji
  • Potrzebuję więcej informacji
  • Chcę umówić prezentację

    Klauzula informacyjna

      Preferowany czas spotkania
      • 9:00
      • 10:00
      • 11:00
      • 12:00
      • 13:00
      • 14:00
      • 15:00
      • 16:00
      • 17:00
      • 18:00
      Klauzula informacyjna

        Inne formy zakupu

        Typ nieruchomości*
        • Mieszkanie
        • Dom
        • Działka
        • Komercja
        • Garaż
        Klauzula informacyjna

        Kup z nami. Dlaczego warto?

        0% prowizji od Kupującego

        żadnych dodatkowych i ukrytych kosztów

        * dotyczy ofert oznaczonych znaczkiem Kup bez prowizji

        Gwarantujemy bezpieczny i korzystny zakup

        zadbamy o bezpieczeństwo transakcji i wynegocjujemy najlepszą cenę.

        Posiadamy nowoczesne narzędzia prezentacji ofert

        dedykowana Przestrzeń Klienta z ofertami dopasowanymi do Twoich poszukiwań.

        Oferujemy skuteczną i bezpłatną pomoc w uzyskaniu kredytu

        ograniczymy formalności do minimum i wynegocjujemy najlepsze warunki.