wróć

Oferta numer: PAN895179

Gdańsk

700 m2 /m²
Miesięczna rata:

Szacowana rata kredytu przy oprocentowaniu stałym, wkładzie własnym 35% i okresie spłaty 30 lat.

oblicz ratę
lokal komercyjny sprzedaż

Opis

Hale i pow. produkcyjno-biurowe, duża działka

Nieruchomość zlokalizowana ok. 10 km od Gdańska

OBIEKT IDEALNY DO PROWADZENIA RÓŻNORODNYCH FORM DZIAŁALNOŚCI ORAZ WYNAJMU (OK. 30.000 NETTO MIESIĘCZNIE)

Kontakt do agenta prowadzącego: Justyna 530 099 671

LOKALIZACJA:

Nieruchomość znajduje się w tzw. pasie przemysłowym i jest zlokalizowana przy drodze krajowej nr 20.

UWAGA! Nieruchomość sąsiaduje z budowaną właśnie Obwodnicą Metropolii Trójmiejskiej (w pobliżu węzła Miszewo), która umożliwi sprawny, bezpieczny i komfortowy przejazd od strony autostrady A1 oraz drogi ekspresowej S7 w kierunku zachodnim i północnym województwa pomorskiego, wyprowadzając ruch tranzytowy na dalsze odcinki trasy S6 w kierunku Lęborka, Słupska i Koszalina. Zapewni dostępność komunikacyjną terenów leżących wzdłuż obecnych dróg krajowych nr 7 i 20, odblokuje centra Żukowa i Chwaszczyna oraz częściowo odciąży istniejącą drogę ekspresową S6 Obwodnicę Trójmiasta.

NIERUCHOMOŚĆ:

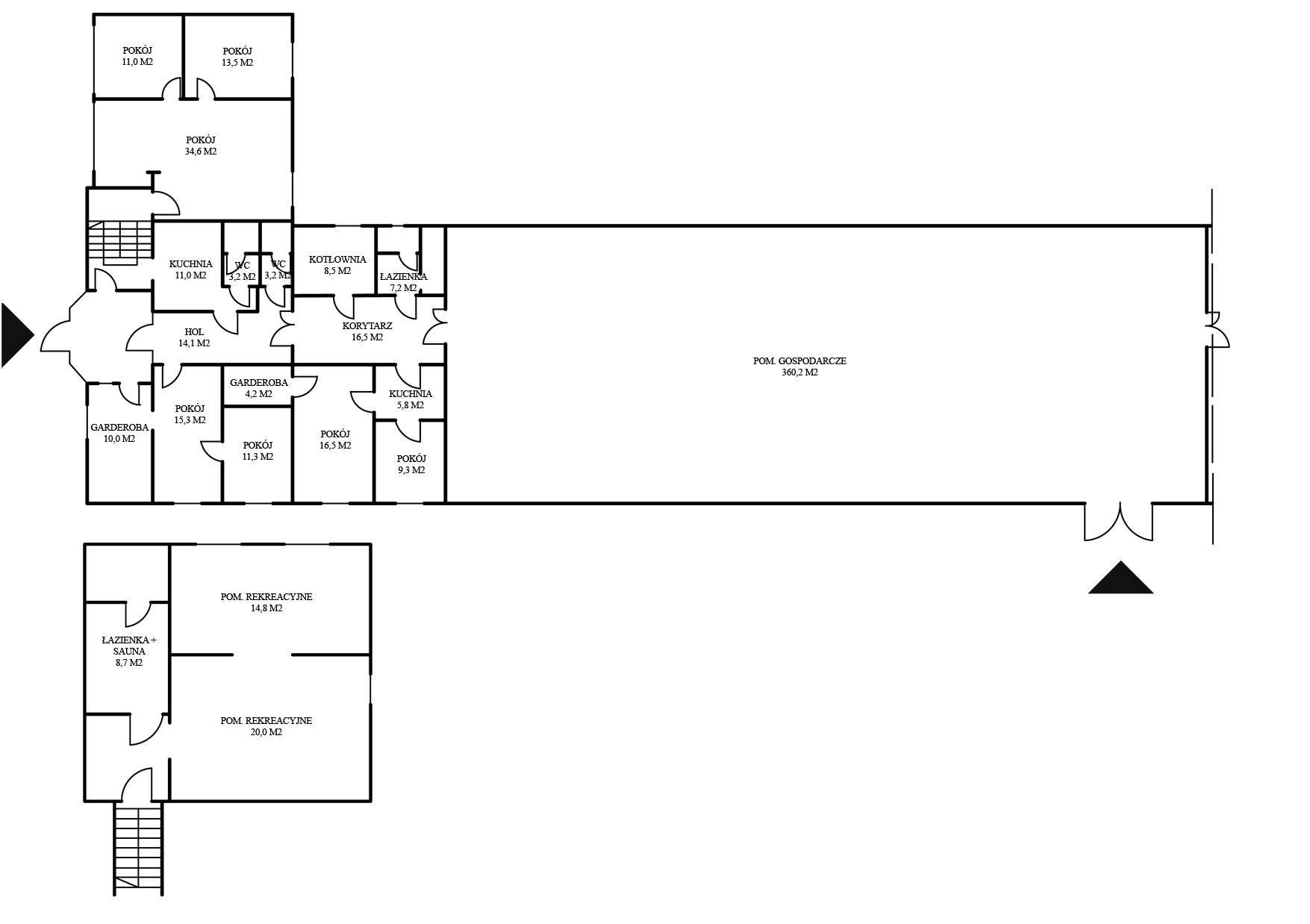
W skład sprzedawanej nieruchomości wchodzą dwie działki o powierzchniach: 2175 m2 i 1550 m2 (łącznie 3725 m2).
Większa z nich usytuowana jest bezpośrednio przy drodze krajowej nr 20 i może zostać zabudowana (np. halą biurowo-magazynową ok. 1000 m2) lub stanowić zaplecze parkingowe lub ekspozycyjne. Na mniejszej działce znajduje się budynek z częścią biurową (ok. 270m2) oraz halą o powierzchni około 430 m2 i wysokości 3 m. Na hali wykonano nowe posadzki betonowe.
Obiekt idealny do prowadzenia różnorodnych form działalności i wynajmu.
Ogrzewany piecem gazowym, hala również ogrzewana i wentylowana.
Obiekt o nowoczesnej technologii , przystosowany do norm i standardów europejskich (monitoring, alarm, szybki Internet, brama automatyczna, duża moc przyłącza elektrycznego pod produkcję, niskie koszty ogrzewania i wody).

UWAGA: istnieje możliwość zakupu sąsiedniej, przyległej działki (2540 m2) z osobnym wjazdem, również zabudowanej budynkiem  z pomieszczeniami biurowymi (ok. 190 m2) oraz halą (ok. 390 m2 i wysokością 5 metrów)  za łączną kwotę 10 480 000 zł.
Przy zakupie całości cena podlega negocjacji.

Zapraszam na prezentację

THE PROPERTY IS IDEAL FOR VARIOUS FORMS OF BUSINESS AND RENTAL (ABOUT 30,000 NET PER MONTH)

LOCATION: The property is located in the so-called industrial belt and is located on the national road no. 20.
CAUTION: The property is adjacent to the Tri-City Metropolitan ring road currently under construction (near the Miszewo junction), which will enable efficient, safe and comfortable passage from the A1 freeway and the S7 expressway in the western and northern direction of the Pomorskie Voivodeship, leading out transit traffic to further sections of the S6 route towards Lębork, Słupsk and Koszalin. It will provide traffic accessibility to the areas lying along the current national roads no. 7 and 20, unblock the centres of Zukowo and Chwaszczyn, and partially relieve the existing expressway S6 Tri-City Bypass.
PROPERTY:
the property being sold includes two plots of land with areas: 2175 m2 and 1550 m2 (total 3725 m2).
The larger of the two plots is located directly on the national road no. 20 and can be developed (e.g. an office and warehouse hall of about 1000 m2) or provide parking or display facilities. On a smaller plot there is a building with an office part (about 270m2) and a hall with an area of about 430 m2 and a height of 3 m. New concrete floors were made on the hall.
The property is ideal for a variety of activities and rentals.
Heated with a gas furnace, the hall is also heated and ventilated.
Modern technology facility, adapted to European norms and standards (monitoring, alarm, high-speed Internet, automatic gate, high power electrical connection for production, low heating and water costs).
NOTE: there is an opportunity to purchase an adjacent, adjacent plot (2540 m2) with a separate entrance, also developed with a building with offices (about 190 m2) and a hall (about 390 m2 and a height of 5 meters) for a total amount of PLN 10 480 000.
The price is negotiable when buying the whole.
Call for more information.
I invite you to the presentation.

IDEALES OBJEKT FÜR DIE AUSÜBUNG VERSCHIEDENER GEWERBETÄTIGKEITEN UND VERMIETUNG (CA. 30.000 NETTO MONATLICH)

LAGE: Die Immobilie befindet sich im sog. Industrieabschnitt und liegt an der Landesstraße Nr. 20.
VORSICHT! Die Immobilie grenzt an die derzeit im Bau befindliche Dreistadt-Metropolen-Umgehungsstraße (in der Nähe der Kreuzung Miszewo), die eine effiziente, sichere und komfortable Fahrt von der Autobahn A1 und der Schnellstraße S7 in Richtung Westen und Norden der Woiwodschaft Pommern ermöglicht und den Transitverkehr zu weiteren Abschnitten der Strecke S6 in Richtung Lębork, Słupsk und Koszalin leitet. Sie wird die Anbindung der Gebiete entlang der derzeitigen Landesstraßen Nr. 7 und 20 an das Verkehrswegenetz sicherstellen, die Zentren von Żuków und Chwaszczyno durchfahrbar machen und den Verkehr auf der bestehenden Schnellstraße S6, der Dreistadt-Umgehungsstraße, teilweise entlasten.
IMMOBILIE:
das verkaufte Grundstück umfasst zwei Grundstücke mit einer Fläche von entsprechend: 2175 m2 und 1550 m2 (insgesamt 3725 m2).
Das größere der beiden Grundstücke liegt direkt an der Landesstraße Nr. 20 und kann z.B. mit einer Büro- und Lagerhalle von ca. 1.000 m2 bebaut werden oder auch als Parkplatz oder Ausstellungsfläche dienen. Auf einem kleineren Grundstück befindet sich ein Gebäude mit einer Bürofläche (ca. 270 m2) und einer Halle von ca. 430 m2 und einer Höhe von 3 m. In der Halle sind neue Betonböden verlegt worden.
Die Immobilie ist für die Ausübung verschiedener Gewerbetätigkeiten und Vermietung ideal.
Das Objekt ist mit einem Gasofen beheizt, die Hallen sind auch beheizt und belüftet.
Es handelt sich um ein Objekt mit moderner Technologie, das an die europäischen Normen und Standards angepasst ist (Überwachung, Alarm, Highspeed-Internet, automatisches Tor, leistungsstarker Stromanschluss für die Produktion, niedrige Heiz- und Wasserkosten).
VORSICHT: es besteht eine Möglichkeit, das angrenzende Grundstück (2540 m2) mit einer separaten Einfahrt zu kaufen, ebenfalls bebaut mit einem Gebäude mit Büroräumlichkeiten (ca. 190 m2) und einer Halle (ca. 390 m2, Höhe 5 Meter) für einen Gesamtpreis von 10.480.000 PLN.
Beim Kauf aller Immobilien ist der Preis verhandelbar.

Dane szczegółowe

Lokalizacja

Gdańsk

Typ komercji

Hale i magazyny

Rodzaj własności

Inny

Powierzchnia

700 m2

Cena za m²

Mapa

Potrzebuję więcej informacji
  • Potrzebuję więcej informacji
  • Chcę umówić prezentację

    Klauzula informacyjna

      Preferowany czas spotkania
      • 9:00
      • 10:00
      • 11:00
      • 12:00
      • 13:00
      • 14:00
      • 15:00
      • 16:00
      • 17:00
      • 18:00
      Klauzula informacyjna

        Inne formy zakupu

        Typ nieruchomości*
        • Mieszkanie
        • Dom
        • Działka
        • Komercja
        • Garaż
        Klauzula informacyjna

        Kalkulator raty kredytowej

        Oblicz przybliżoną ratę kredytu hipotecznego

        lat

        Szacowana rata kredytu przy oprocentowaniu stałym, wkładzie własnym 35% i okresie spłaty 30 lat.

        Rata miesięczna:

        Oblicz swoją zdolność z naszym Doradcą ds. kredytów hipotecznych

        Sprawdź swoją zdolność

        Kup z nami. Dlaczego warto?

        0% prowizji od Kupującego

        żadnych dodatkowych i ukrytych kosztów

        * dotyczy ofert oznaczonych znaczkiem Kup bez prowizji

        Gwarantujemy bezpieczny i korzystny zakup

        zadbamy o bezpieczeństwo transakcji i wynegocjujemy najlepszą cenę.

        Posiadamy nowoczesne narzędzia prezentacji ofert

        dedykowana Przestrzeń Klienta z ofertami dopasowanymi do Twoich poszukiwań.

        Oferujemy skuteczną i bezpłatną pomoc w uzyskaniu kredytu

        ograniczymy formalności do minimum i wynegocjujemy najlepsze warunki.

        Agencja nieruchomości Partnerzy