wróć

Oferta numer: PAN700659

Gdańsk

580 m2 /m²
Miesięczna rata:

Szacowana rata kredytu przy oprocentowaniu stałym, wkładzie własnym 35% i okresie spłaty 30 lat.

oblicz ratę
lokal komercyjny sprzedaż

Opis

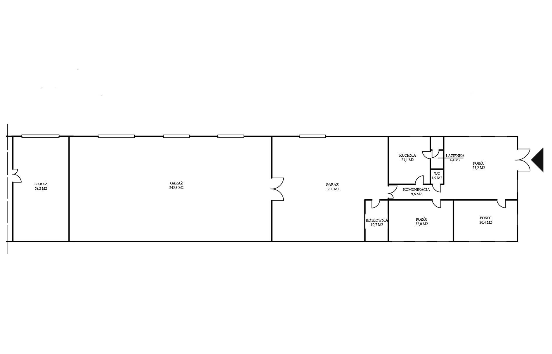
Hale i pow. produkcyjno-biurowe, duża działka

Nieruchomość zlokalizowana ok. 10 km od Gdańska.

OBIEKT IDEALNY DO PROWADZENIA RÓŻNORODNYCH FORM DZIAŁALNOŚCI ORAZ WYNAJMU (OK. 30.000 NETTO MIESIĘCZNIE)

Kontakt do agenta prowadzącego: Justyna 530 099 671

LOKALIZACJA: nieruchomość znajduje się w tzw. pasie przemysłowym i jest zlokalizowana w pobliżu drogi krajowej nr 20.

UWAGA! Nieruchomość sąsiaduje z budowaną właśnie Obwodnicą Metropolii Trójmiejskiej (w pobliżu węzła Miszewo), która umożliwi sprawny, bezpieczny i komfortowy przejazd od strony autostrady A1 oraz drogi ekspresowej S7 w kierunku zachodnim i północnym województwa pomorskiego, wyprowadzając ruch tranzytowy na dalsze odcinki trasy S6 w kierunku Lęborka, Słupska i Koszalina. Zapewni dostępność komunikacyjną terenów leżących wzdłuż obecnych dróg krajowych nr 7 i 20, odblokuje centra Żukowa i Chwaszczyna oraz częściowo odciąży istniejącą drogę ekspresową S6 Obwodnicę Trójmiasta.

NIERUCHOMOŚĆ:
działka o powierzchni 2540 m2 zabudowana budynkiem z częścią biurową (ok. 190 m2) oraz halami o powierzchni łącznej około 390 m2 i wysokości 5 oraz 3 metry.
Obiekt idealny do prowadzenia różnorodnych form działalności i wynajmu.
Ogrzewany piecem na pelet, hale również ogrzewane i wentylowane.
Obiekt o nowoczesnej technologii , przystosowany do norm i standardów europejskich (monitoring, alarm, szybki Internet, brama automatyczna, duża moc przyłącza elektrycznego pod produkcję, niskie koszty ogrzewania i wody).

UWAGA: istnieje możliwość zakupu sąsiednich, przyległych działek (o łącznej powierzchni 3725 m2) z osobnym wjazdem, również zabudowanych budynkiem z pomieszczeniami biurowymi (ok. 270 m2) oraz halą (ok. 430 m2, wysokość 3 metry) za łączną kwotę 10 480 000 zł.
Przy zakupie całości cena podlega negocjacji.

Zadzwoń bezpośrednio do agenta prowadzącego po więcej informacji: Justyna 530 099 671

Zapraszam na prezentację.

THE PROPERTY IS IDEAL FOR VARIOUS FORMS OF BUSINESS AND RENTAL (ABOUT 30,000 NET PER MONTH)

LOCATION: The property is located in the so-called industrial belt and is located near the national road no. 20.
CAUTION: The property is adjacent to the Tri-City Metropolitan ring road under construction (near the Miszewo junction), which will enable efficient, safe and comfortable passage from the A1 highway and the S7 expressway in the western and northern direction of the Pomorskie Voivodeship, leading out transit traffic to further sections of the S6 route towards Lębork, Słupsk and Koszalin. It will provide traffic accessibility to the areas lying along the current national roads No. 7 and 20, unblock the centres of Żukowo and Chwaszczyn, and partially relieve the existing S6 expressway Tri-City Ring Road.
PROPERTY:
plot of land with an area of 2540 m2 built with a building with an office part (about 190 m2) and halls with a total area of about 390 m2 and a height of 5 and 3 meters.
The property is ideal for various forms of business and rental.
Heated with a pellet stove, the halls are also heated and ventilated.
Modern technology facility, adapted to European norms and standards (monitoring, alarm, high-speed Internet, automatic gate, high power electrical connection for production, low heating and water costs).
NOTE: it is possible to purchase adjacent, adjacent plots (with a total area of 3725 m2) with a separate entrance, also developed with an office building (about 270 m2) and a hall (about 430 m2, height 3 meters) for a total amount of PLN 10 480 000.
The price is negotiable when buying the whole.
Call for more information.
I invite you to the presentation.

IDEALES OBJEKT FÜR DIE AUSÜBUNG VERSCHIEDENER GEWERBETÄTIGKEITEN UND VERMIETUNG (CA. 30.000 NETTO MONATLICH)

LAGE: Die Immobilie befindet sich im sog. Industrieabschnitt und liegt in der Nähe der Landesstraße Nr. 20.
VORSICHT! Die Immobilie grenzt an die derzeit im Bau befindliche Dreistadt-Metropolen-Umgehungsstraße (in der Nähe der Kreuzung Miszewo), die eine effiziente, sichere und komfortable Fahrt von der Autobahn A1 und der Schnellstraße S7 in Richtung Westen und Norden der Woiwodschaft Pommern ermöglicht und den Transitverkehr zu weiteren Abschnitten der Strecke S6 in Richtung Lębork, Słupsk und Koszalin leitet. Sie wird die Anbindung der Gebiete entlang der derzeitigen Landesstraßen Nr. 7 und 20 an das Verkehrswegenetz sicherstellen, die Zentren von Żukowo und Chwaszczyno durchfahrbar machen und den Verkehr auf der bestehenden Schnellstraße S6, der Dreistadt-Umgehungsstraße, teilweise entlasten.
IMMOBILIE:
Das Grundstück mit einer Fläche von 2540 m2 ist mit einem Gebäude mit einer Bürofläche (ca. 190 m2) und den Hallen mit einer Gesamtfläche von ca. 390 m2 und einer Höhe von 5 und 3 Metern bebaut.
Die Immobilie ist für die Ausübung verschiedener Gewerbetätigkeiten und Vermietung ideal.
Das Objekt ist mit einem Pelletofen beheizt, die Hallen sind auch beheizt und belüftet.
Es handelt sich um ein Objekt mit moderner Technologie, das an die europäischen Normen und Standards angepasst ist (Überwachung, Alarm, Highspeed-Internet, automatisches Tor, leistungsstarker Stromanschluss für die Produktion, niedrige Heiz- und Wasserkosten).
VORSICHT: es besteht eine Möglichkeit, die angrenzenden, benachbarten Grundstücke (mit einer Gesamtfläche von 3725 m2) mit einer separaten Einfahrt zu kaufen, ebenfalls bebaut mit einem Gebäude mit Büroräumlichkeiten (ca. 270 m2) und einer Halle (ca. 430 m2, Höhe 3 Meter) für einen Gesamtpreis von 10.480.000 PLN.
Beim Kauf aller Immobilien ist der Preis verhandelbar.

Dane szczegółowe

Lokalizacja

Gdańsk

Typ komercji

Hale i magazyny

Rodzaj własności

Inny

Powierzchnia

580 m2

Cena za m²

Mapa

Potrzebuję więcej informacji
  • Potrzebuję więcej informacji
  • Chcę umówić prezentację

    Klauzula informacyjna

      Preferowany czas spotkania
      • 9:00
      • 10:00
      • 11:00
      • 12:00
      • 13:00
      • 14:00
      • 15:00
      • 16:00
      • 17:00
      • 18:00
      Klauzula informacyjna

        Inne formy zakupu

        Typ nieruchomości*
        • Mieszkanie
        • Dom
        • Działka
        • Komercja
        • Garaż
        Klauzula informacyjna

        Kalkulator raty kredytowej

        Oblicz przybliżoną ratę kredytu hipotecznego

        lat

        Szacowana rata kredytu przy oprocentowaniu stałym, wkładzie własnym 35% i okresie spłaty 30 lat.

        Rata miesięczna:

        Oblicz swoją zdolność z naszym Doradcą ds. kredytów hipotecznych

        Sprawdź swoją zdolność

        Kup z nami. Dlaczego warto?

        0% prowizji od Kupującego

        żadnych dodatkowych i ukrytych kosztów

        * dotyczy ofert oznaczonych znaczkiem Kup bez prowizji

        Gwarantujemy bezpieczny i korzystny zakup

        zadbamy o bezpieczeństwo transakcji i wynegocjujemy najlepszą cenę.

        Posiadamy nowoczesne narzędzia prezentacji ofert

        dedykowana Przestrzeń Klienta z ofertami dopasowanymi do Twoich poszukiwań.

        Oferujemy skuteczną i bezpłatną pomoc w uzyskaniu kredytu

        ograniczymy formalności do minimum i wynegocjujemy najlepsze warunki.

        Agencja nieruchomości Partnerzy