wróć

Oferta numer: PAN358593

Gdańsk, Wrzeszcz, al. Aleja Gen. Józefa Hallera

385 m2 4 pok. 0/5 piętro /m²
Miesięczna rata:

Szacowana rata kredytu przy oprocentowaniu stałym, wkładzie własnym 35% i okresie spłaty 30 lat.

oblicz ratę
lokal komercyjny sprzedaż

Opis

Prestiżowy lokal biurowy- Zajezdnia Wrzeszcz

Gotowy do wejścia, w pełni wyposażony lokal biurowy w prestiżowej lokalizacji – doskonała inwestycja dla międzynarodowych firm i dynamicznie rozwijających się biznesów w Polsce!

Tylko u nas!
Podana cena stanowi kwotę netto
Możliwość zakupu w euro – cena ofertowa: 4 500 000 EUR

LOKALIZACJA:
Lokal biurowy znajduje się na prestiżowym osiedlu Zajezdnia Wrzeszcz w Gdańsku. To nowoczesna inwestycja wyróżniająca się industrialnym stylem, wysokim standardem wykończenia oraz całodobowym monitoringiem i lobby z portierem, co zapewnia bezpieczeństwo i komfort użytkownikom. Osiedle jest doskonale skomunikowane – w pobliżu znajdują się przystanki autobusowe i tramwajowe, umożliwiające szybki dojazd do centrum Gdańska, lotniska oraz nadmorskich dzielnic. Dodatkowo, bliskość morza, terenów rekreacyjnych i ścieżek rowerowych sprawia, że jest to atrakcyjna lokalizacja zarówno dla firm, jak i ich pracowników.

BUDYNEK:
Lokal znajduje się na parterze kameralnego budynku z 2020 roku, wykonanego z wysokiej klasy energooszczędnych materiałów. Posiada duże witryny, a także miejsce na szyld i baner, co zapewnia doskonałą widoczność i możliwość skutecznej reklamy. Dzięki lokalizacji na parterze jest łatwo dostępny zarówno dla klientów, jak i pracowników. W budynku do dyspozycji mieszkańców znajduje się prywatna siłownia oraz strefa zabaw dla dzieci, co podnosi komfort użytkowania przestrzeni.

LOKAL:
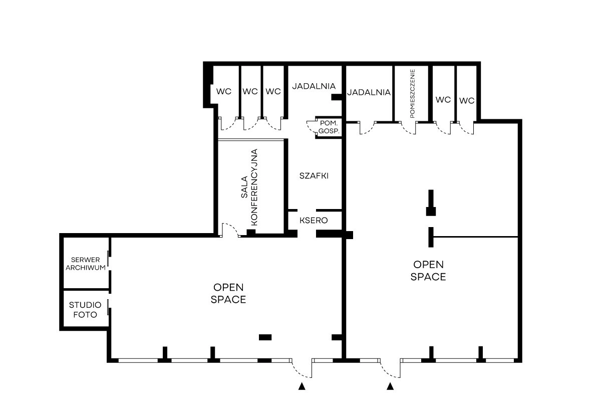
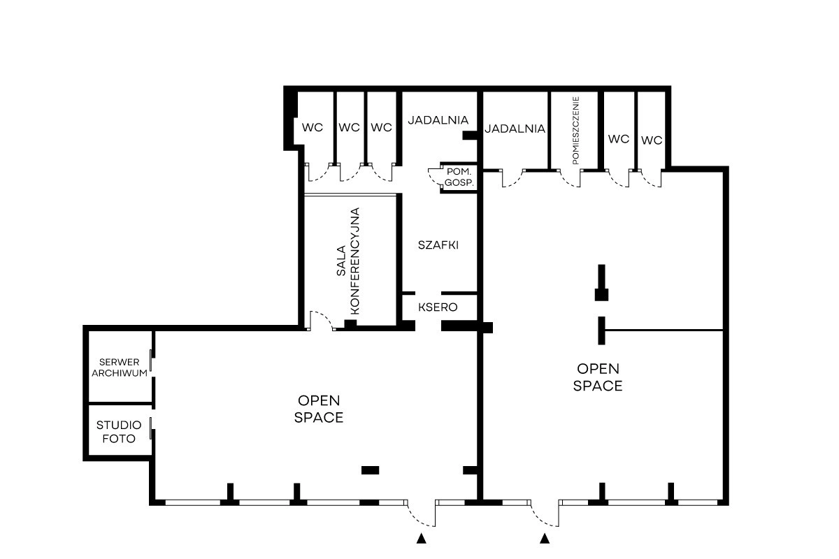
Lokal biurowy, w pełni wyposażony, o powierzchni użytkowej 384,97m2, składa się z:
-Trzech otwartych przestrzeni biurowych
-Sali konferencyjnej
-Strefy szatni pracowniczej
-Dwóch kuchni
-Pięciu toalet 
-Trzech pomieszczeń gospodarczych
-Serwerowni 

Do lokalu przynależy:
-16 miejsc postojowych naziemnych zabezpieczonych blokadami 
-2 komórki lokatorskie (4,53m2 oraz 4,62m2) 

STANDARD WYKOŃCZENIA:
– Lokal został zaprojektowany i wykończony we współpracy z renomowanym biurem architektonicznym LOFT z Sopotu
– Lokal wyposażony jest w zaawansowany system automatyki KNX, który steruje oświetleniem, klimatyzacją, wentylacją, temperaturą oraz żaluzjami, umożliwiając tworzenie spersonalizowanych scen, np. z muzyką.
– System alarmowy z aplikacją zapewnia pełne bezpieczeństwo, a 12 kamer monitoringu rejestruje obraz z dwutygodniowym archiwum.
– Oświetlenie sterowane systemem  DALI umożliwia indywidualne sterowanie jasnością przy każdym biurku, a dodatkowe światła są dostosowane do optymalnego wzrostu roślin.
– Biurka elektryczne z regulacją wysokości zapewniają ergonomię pracy, a dodatkowe budki akustyczne (siedzące oraz stojące) gwarantują komfortowe warunki do rozmów i spotkań.
– Szklana ściana separacyjna wydziela dodatkową przestrzeń, zapewniając prywatność.
– Ogrzewanie podłogowe oraz grzejniki kanałowe dbają o komfort cieplny przez cały rok, a wentylacja z rekuperacją zapewnia świeże powietrze.
– Sala konferencyjna wyposażona jest w elektroniczny projektor Sony, tablicę do notatek oraz wbudowane podłączenie HDMI w stole.
– Nagłośnienie podzielone na strefy umożliwia dopasowanie dźwięku do różnych części lokalu.
– Obie kuchnie zostały wyposażone w sprzęt Miele, w tym zmywarkę, lodówkę oraz dodatkową lodówkę na mleko, a także kuchenki mikrofalowe.
– Toalety posiadają dyfuzory zapachu, elektroniczny system spuszczania wody. Baterie w umywalkach działają na czujniki ruchu.

DODATKOWE INFORMACJE:
-Czynsz ok. 2980 zł/miesiąc 
-Lokal sprzedawany z pełnym wyposażeniem
-Termin wydania do ustalenia

Ten wyjątkowy lokal to połączenie nowoczesnych technologii, najwyższego standardu wykończenia i doskonałej lokalizacji – idealna przestrzeń dla Twojego biznesu, który zasługuje na prestiż i komfort!

Zapraszam serdecznie do kontaktu i na prezentację lokalu! 

Dane szczegółowe

Lokalizacja

Gdańsk, Wrzeszcz, al. Aleja Gen. Józefa Hallera

Typ komercji

Biuro

Rodzaj własności

Inny

Powierzchnia

385 m2

Liczba pokoi

4

Rok budowy

2020

Piętro

0/5

Winda

Tak

Garaż/miejsce parkingowe

Tak

Rodzaj ogrzewania

CO miejskie

Cena za m²

Mapa

Potrzebuję więcej informacji
  • Potrzebuję więcej informacji
  • Chcę umówić prezentację

    Klauzula informacyjna

      Preferowany czas spotkania
      • 9:00
      • 10:00
      • 11:00
      • 12:00
      • 13:00
      • 14:00
      • 15:00
      • 16:00
      • 17:00
      • 18:00
      Klauzula informacyjna

        Inne formy zakupu

        Typ nieruchomości*
        • Mieszkanie
        • Dom
        • Działka
        • Komercja
        • Garaż
        Klauzula informacyjna

        Kalkulator raty kredytowej

        Oblicz przybliżoną ratę kredytu hipotecznego

        lat

        Szacowana rata kredytu przy oprocentowaniu stałym, wkładzie własnym 35% i okresie spłaty 30 lat.

        Rata miesięczna:

        Oblicz swoją zdolność z naszym Doradcą ds. kredytów hipotecznych

        Sprawdź swoją zdolność

        Kup z nami. Dlaczego warto?

        0% prowizji od Kupującego

        żadnych dodatkowych i ukrytych kosztów

        * dotyczy ofert oznaczonych znaczkiem Kup bez prowizji

        Gwarantujemy bezpieczny i korzystny zakup

        zadbamy o bezpieczeństwo transakcji i wynegocjujemy najlepszą cenę.

        Posiadamy nowoczesne narzędzia prezentacji ofert

        dedykowana Przestrzeń Klienta z ofertami dopasowanymi do Twoich poszukiwań.

        Oferujemy skuteczną i bezpłatną pomoc w uzyskaniu kredytu

        ograniczymy formalności do minimum i wynegocjujemy najlepsze warunki.

        Agencja nieruchomości Partnerzy

        Podobne oferty