Opis
Nieruchomość z potencjałem w Gdyni Redłowie !
Cena podlega negocjacji!
Na sprzedaż wyjątkowa nieruchomość położona w jednej z najbardziej atrakcyjnych dzielnic Gdyni – Redłowie, przy ul. Mariana Mokwy. To prestiżowa lokalizacja, która łączy świetną komunikację, bliskość morza i terenów zielonych oraz szybki dostęp do centrum miasta.
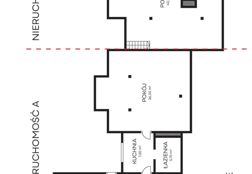
Na działce o powierzchni 716 m² znajdują się dwa połączone domy w zabudowie szeregowej o łącznej powierzchni całkowitej około 780 m², w tym około 500 m² powierzchni użytkowej. Budynki składają się z trzech kondygnacji: piwnicy, parteru oraz poddasza.
Nieruchomość jest w stanie do remontu lub dokończenia, jednak mury i konstrukcja znajdują się w bardzo dobrym stanie, co stanowi solidną bazę do dalszych prac. Dzięki temu nowy właściciel zyska możliwość adaptacji przestrzeni zgodnie z własnymi potrzebami.
Atuty nieruchomości:
doskonała lokalizacja w Gdyni Redłowie,
działka o powierzchni 716 m²,
duża powierzchnia całkowita budynków – ok. 780 m²,
trzy pełne kondygnacje dające elastyczność aranżacyjną,
mury i konstrukcja w bardzo dobrym stanie,
pełne uzbrojenie – gaz oraz woda i kanalizacja z sieci miejskiej,
ogromny potencjał inwestycyjny i mieszkalny.
Wysokie piwnice, które można zaaranżować na sale kinowe, warsztat, studio nagrań, bawialnię lub magazyn
Możliwość podziału na dwie odrębne nieruchomości
Dwupoziomowy ogród z tyłu budynku
Nieruchomość przy cichej, ślepej uliczce
2 minuty do wejścia do Parku Krajobrazowego Polanka Redłowska, 15 minut pieszo do morza
5 minut autem od centrum Gdyni
To oferta idealna dla osób poszukujących nieruchomości w prestiżowej lokalizacji, która dzięki solidnej konstrukcji i dużej powierzchni daje ogromne możliwości aranżacyjne.
ZAPRASZAM NA PREZENTACJĘ !




















