wróć

Oferta numer: PAN361104

Gdańsk

1234 m2 /m²
Miesięczna rata:

Szacowana rata kredytu przy oprocentowaniu stałym, wkładzie własnym 35% i okresie spłaty 30 lat.

oblicz ratę
lokal komercyjny sprzedaż

Opis

Hale i pow. produkcyjno-biurowe, duża działka

Nieruchomość zlokalizowana ok. 10 km od Gdańska

OBIEKT IDEALNY DO PROWADZENIA RÓŻNORODNYCH FORM DZIAŁALNOŚCI ORAZ WYNAJMU (OK. 30.000 NETTO MIESIĘCZNIE)

Kontakt do agenta prowadzącego: Justyna 530 099 671

LOKALIZACJA: nieruchomość znajduje się w tzw. pasie przemysłowym i jest zlokalizowana przy drodze krajowej nr 20.

UWAGA! Nieruchomość sąsiaduje z budowaną właśnie Obwodnicą Metropolii Trójmiejskiej (w pobliżu węzła Miszewo), która umożliwi sprawny, bezpieczny i komfortowy przejazd od strony autostrady A1 oraz drogi ekspresowej S7 w kierunku zachodnim i północnym województwa pomorskiego, wyprowadzając ruch tranzytowy na dalsze odcinki trasy S6 w kierunku Lęborka, Słupska i Koszalina. Zapewni dostępność komunikacyjną terenów leżących wzdłuż obecnych dróg krajowych nr 7 i 20, odblokuje centra Żukowa i Chwaszczyna oraz częściowo odciąży istniejącą drogę ekspresową S6 Obwodnicę Trójmiasta.

NIERUCHOMOŚĆ:
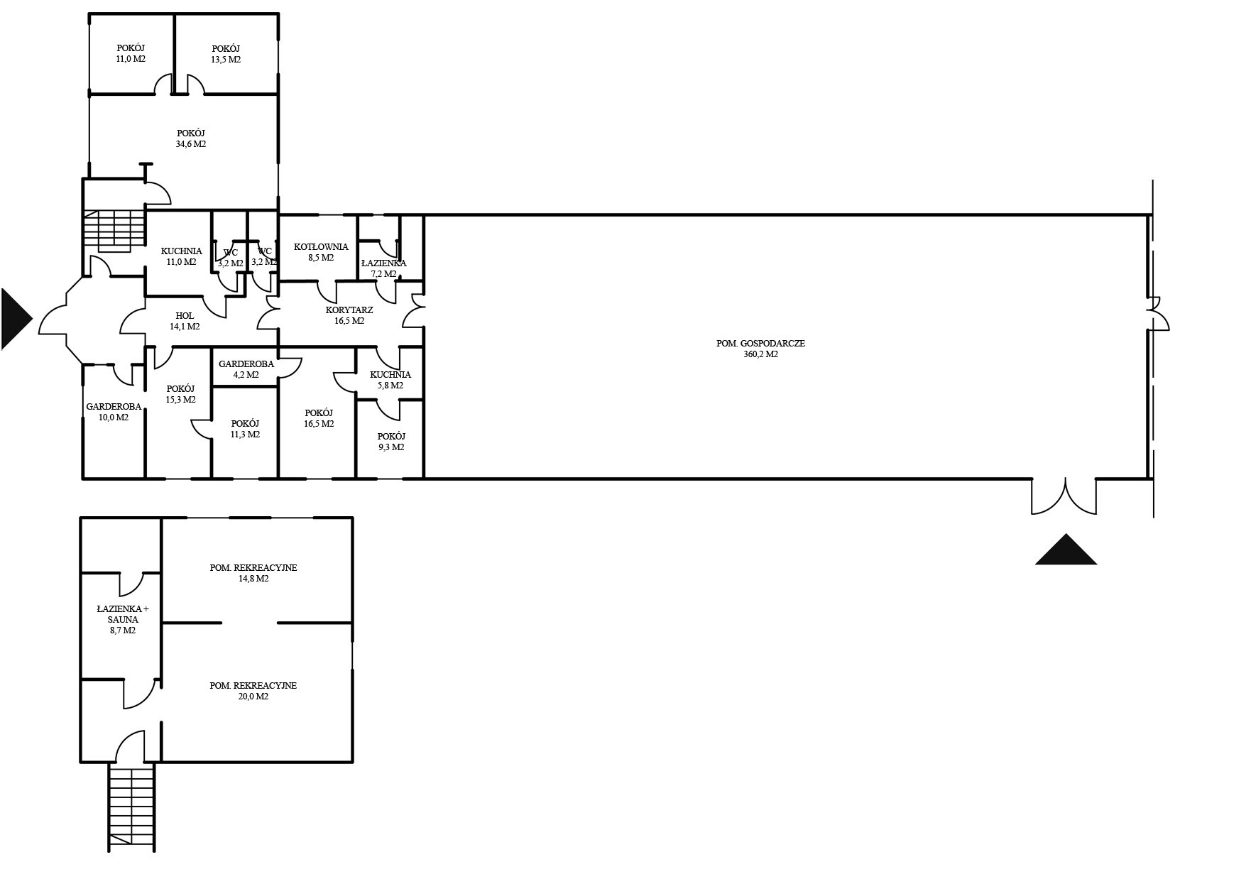
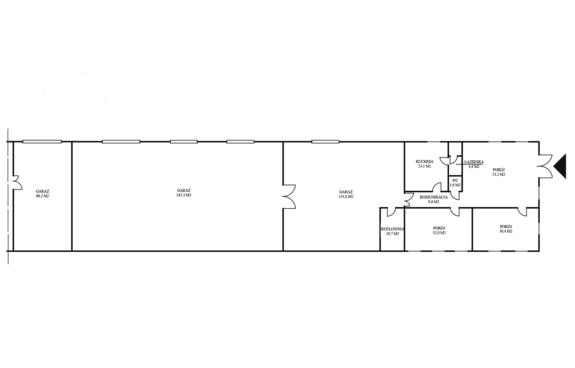
w skład całej nieruchomości wchodzą trzy działki o łącznej powierzchni 6265 m.kw. Dwie z nich zabudowane są budynkami (hale i pomieszczenia biurowe) o łącznej przybliżonej powierzchni:
hale: ok.  820 m.kw
powierzchnie biurowe: ok. 450 m.kw.

Nieruchomość posiada dwa niezależne wjazdy z placami manewrowymi, umożliwiające wjazdy Tirom z dużymi ładunkami lub ekspozycję i składowanie towarów. Jedną z działek można zabudować budynkiem biurowo-magazynowym o pow. ok. 1000 m. kw.)
Wysokość hal od 3 do 5 metrów (ogrzewane i wentylowane).
Ogrzewanie: piec gazowy/piec na paliwo stałe.

Obiekt idealny do prowadzenia różnorodnych form działalności i wynajmu.

Obiekt o nowoczesnej technologii , przystosowany do norm i standardów europejskich (monitoring, alarm, szybki Internet, brama automatyczna, duża moc przyłącza elektrycznego pod produkcję, niskie koszty ogrzewania i wody).

Zadzwoń bezpośrednio do agenta prowadzącego po więcej informacji: Justyna 530 099 671

Zapraszam na prezentację.

AN IDEAL PROPERTY FOR VARIOUS FORMS OF BUSINESS AND RENTAL (ABOUT 30,000 NET PER MONTH)

LOCATION: the property is located in the so-called industrial belt and is located on the national road no. 20.
CAUTION: The property is adjacent to the Tri-City Metropolitan ring road currently under construction (near the Miszewo junction), which will enable efficient, safe and comfortable passage from the A1 freeway and the S7 expressway in the western and northern direction of the Pomorskie Voivodeship, leading out transit traffic to further sections of the S6 route towards Lębork, Słupsk and Koszalin. It will provide traffic accessibility to the areas lying along the current national roads no. 7 and 20, unblock the centres of Zukowo and Chwaszczyn, and partially relieve the existing expressway S6 Tri-City Bypass.
PROPERTY:
the entire property includes three plots of land with a total area of 6265 sq.m. Two of them are developed with buildings (halls and offices) with a total approximate area:
halls: approx. 820 sq.m.
office spaces: approx. 450 sq.m.
The property has two independent entrances with manoeuvring areas, allowing entry of HGVs with large loads or exposure and storage of goods. One of the plots can be developed with an office and warehouse building with an area of about 1,000 sq. m.).
Halls are from 3 to 5 meters high (heated and ventilated).
Heating: gas furnace / solid fuel stove.
The object is ideal for various forms of business and rental.
It’s a modern technology facility, adapted to European norms and standards (monitoring, alarm, high-speed Internet, automatic gate, high power electrical connection for production, low heating and water costs).
Call for more information.
I invite you to presentation.

IDEALES OBJEKT FÜR DIE AUSÜBUNG VERSCHIEDENER GEWERBETÄTIGKEITEN UND VERMIETUNG (CA. 30.000 NETTO MONATLICH)

LAGE: Die Immobilie befindet sich bei den sog. Industrieanlagen und liegt an der Landesstraße Nr. 20.
VORSICHT! Die Immobilie grenzt an die derzeit im Bau befindliche Dreistadt-Metropolen-Umgehungsstraße (in der Nähe der Kreuzung Miszewo), die eine effiziente, sichere und komfortable Fahrt von der Autobahn A1 und der Schnellstraße S7 in Richtung Westen und Norden der Woiwodschaft Pommern ermöglicht und den Transitverkehr zu weiteren Abschnitten der Strecke S6 in Richtung Lębork, Słupsk und Koszalin leitet. Sie wird die Kommunikationsanbindung der Gebiete entlang der derzeitigen Landesstraßen Nr. 7 und 20 sicherstellen, die Zentren von Żukowo und Chwaszczyno entsperren und den Verkehr auf der bestehenden Schnellstraße S6, Dreistadt-Umgehungsstraße, teilweise entlasten.
IMMOBILIE:
Die gesamte Immobilie umfasst drei Grundstücke mit einer Gesamtfläche von 6.265 m². Zwei davon sind mit Gebäuden (Hallen und Büroräume) mit folgender ungefähren Gesamtfläche bebaut:
Hallen: ca. 820 m²,
Büroflächen: ca. 450 m².
Die Immobilie verfügt über zwei unabhängige Einfahrten mit Manövrierflächen, die es LKWs mit großen Ladungen ermöglichen, einzufahren sowie die Waren zu verladen und zu lagern. Eines der Grundstücke kann mit einem Büro- und Lagergebäude mit einer Fläche von ca. 1.000 m² bebaut werden.
Die Höhe der Hallen beträgt 3 bis 5 Meter (beheizt und belüftet).
Heizung: Gas-/Festbrennstoffofen.

Die Immobilie ist für die Ausübung verschiedener Gewerbetätigkeiten und Vermietung ideal.
Das Objekt mit moderner Technologie, angepasst an europäische Normen und Standards (Überwachung, Alarm, Highspeed-Internet, automatisches Tor, leistungsstarker Stromanschluss für die Produktion, niedrige Heiz- und Wasserkosten).

Dane szczegółowe

Lokalizacja

Gdańsk

Typ komercji

Hale i magazyny

Rodzaj własności

Inny

Powierzchnia

1234 m2

Rodzaj ogrzewania

CO własne

Cena za m²

Mapa

Potrzebuję więcej informacji
  • Potrzebuję więcej informacji
  • Chcę umówić prezentację

    Klauzula informacyjna

      Preferowany czas spotkania
      • 9:00
      • 10:00
      • 11:00
      • 12:00
      • 13:00
      • 14:00
      • 15:00
      • 16:00
      • 17:00
      • 18:00
      Klauzula informacyjna

        Inne formy zakupu

        Typ nieruchomości*
        • Mieszkanie
        • Dom
        • Działka
        • Komercja
        • Garaż
        Klauzula informacyjna

        Kalkulator raty kredytowej

        Oblicz przybliżoną ratę kredytu hipotecznego

        lat

        Szacowana rata kredytu przy oprocentowaniu stałym, wkładzie własnym 35% i okresie spłaty 30 lat.

        Rata miesięczna:

        Oblicz swoją zdolność z naszym Doradcą ds. kredytów hipotecznych

        Sprawdź swoją zdolność

        Kup z nami. Dlaczego warto?

        0% prowizji od Kupującego

        żadnych dodatkowych i ukrytych kosztów

        * dotyczy ofert oznaczonych znaczkiem Kup bez prowizji

        Gwarantujemy bezpieczny i korzystny zakup

        zadbamy o bezpieczeństwo transakcji i wynegocjujemy najlepszą cenę.

        Posiadamy nowoczesne narzędzia prezentacji ofert

        dedykowana Przestrzeń Klienta z ofertami dopasowanymi do Twoich poszukiwań.

        Oferujemy skuteczną i bezpłatną pomoc w uzyskaniu kredytu

        ograniczymy formalności do minimum i wynegocjujemy najlepsze warunki.

        Agencja nieruchomości Partnerzy