wróć

Oferta numer: PAN247006

Gdańsk, Wrzeszcz, ul. Tadeusza Sygietyńskiego

13.72 m2 0/1 piętro /m²
lokal komercyjny wynajem

Opis

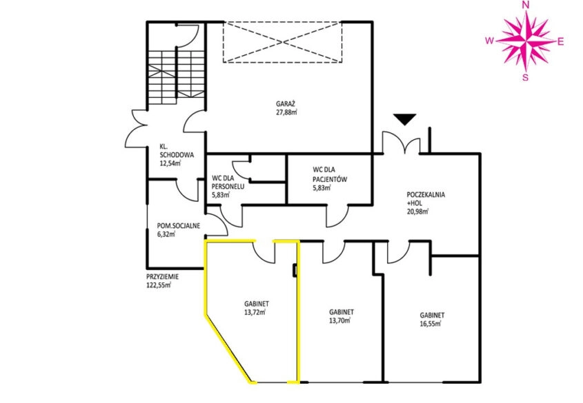
Gdańsk Strzyża, gabinet lekarski/biuro na wynajem.

Tylko u nas!
Jeżeli szukasz komfortowej przestrzeni za równo dla siebie jak i dla Twoich klientów i uważasz, że miejsce pracy jest Twoją wizytówką zapoznaj się z tą ofertą.

Nieruchomość położona w zielonej części Wrzeszcza-Strzyża, zaledwie 50 m. od ul. Chrzanowskiego w otoczeniu domów jednorodzinnych. Najbliższy przystanek tramwajowy znajduje się w odległości 400 m.
Dla osób zmotoryzowanych wygodny dojazd od strony obwodnicy Trójmiasta, czy Sopotu. Bezpośrednio przed budynkiem, który został zbudowany w 2016 roku znajdują się miejsca parkingowe zlokalizowane za automatyczną bramą wjazdową.

W budynku aktualnie znajdują się dwa gabinety lekarskie. 

Powierzchnia przeznaczona do najmu wynosi 13,72 m2 + części wspólne.

Na części wspólne składają się – przestronna poczekalnia oraz toaleta przystosowana dla osób niepełnosprawnych.
Dla personelu przewidziano pomieszczenie socjalne oraz łazienkę z WC oraz prysznicem.

Całość wykończona materiałami wysokiej jakości. Ściany gładzone oraz malowane, na podłogach gres. Okna PCV z roletami antywłamaniowymi oraz przeciwsłonecznymi.
Lokal wyposażony również w meble widoczne na zdjęciach.
Dodatkowo w lokalu znajduje się instalacja do fotela elektrycznego (np. dentystycznego).
Idealna propozycja dla klientów szukających lokalu ogólnolekarskiego, kosmetologicznego lub dentystycznego.

Budynek wyposażony jest w alarm oraz wideodomofon.

Dostępne od 1 maja.

CZYNSZ: 3500 zł
KAUCJA: Do uzgodnienia.

Na wszystkie pytania odpowiem osobiście.
Zapraszam na prezentację.

Dane szczegółowe

Lokalizacja

Gdańsk, Wrzeszcz, ul. Tadeusza Sygietyńskiego

Typ komercji

Lokale

Rodzaj własności

Inny

Powierzchnia

13.72 m2

Rok budowy

2016

Piętro

0/1

Garaż/miejsce parkingowe

Tak

Woda

Tak

Kanalizacja

Tak

Rodzaj ogrzewania

Gazowe

Cena za m²

Mapa

Potrzebuję więcej informacji
  • Potrzebuję więcej informacji
  • Chcę umówić prezentację

    Klauzula informacyjna

      Preferowany czas spotkania
      • 9:00
      • 10:00
      • 11:00
      • 12:00
      • 13:00
      • 14:00
      • 15:00
      • 16:00
      • 17:00
      • 18:00
      Klauzula informacyjna

        Inne formy zakupu

        Typ nieruchomości*
        • Mieszkanie
        • Dom
        • Działka
        • Komercja
        • Garaż
        Klauzula informacyjna

        Kup z nami. Dlaczego warto?

        0% prowizji od Kupującego

        żadnych dodatkowych i ukrytych kosztów

        * dotyczy ofert oznaczonych znaczkiem Kup bez prowizji

        Gwarantujemy bezpieczny i korzystny zakup

        zadbamy o bezpieczeństwo transakcji i wynegocjujemy najlepszą cenę.

        Posiadamy nowoczesne narzędzia prezentacji ofert

        dedykowana Przestrzeń Klienta z ofertami dopasowanymi do Twoich poszukiwań.

        Oferujemy skuteczną i bezpłatną pomoc w uzyskaniu kredytu

        ograniczymy formalności do minimum i wynegocjujemy najlepsze warunki.

        Agencja nieruchomości Partnerzy

        Podobne oferty