Opis
Dom w zabudowie Bliźniaczej/ładne wnętrze
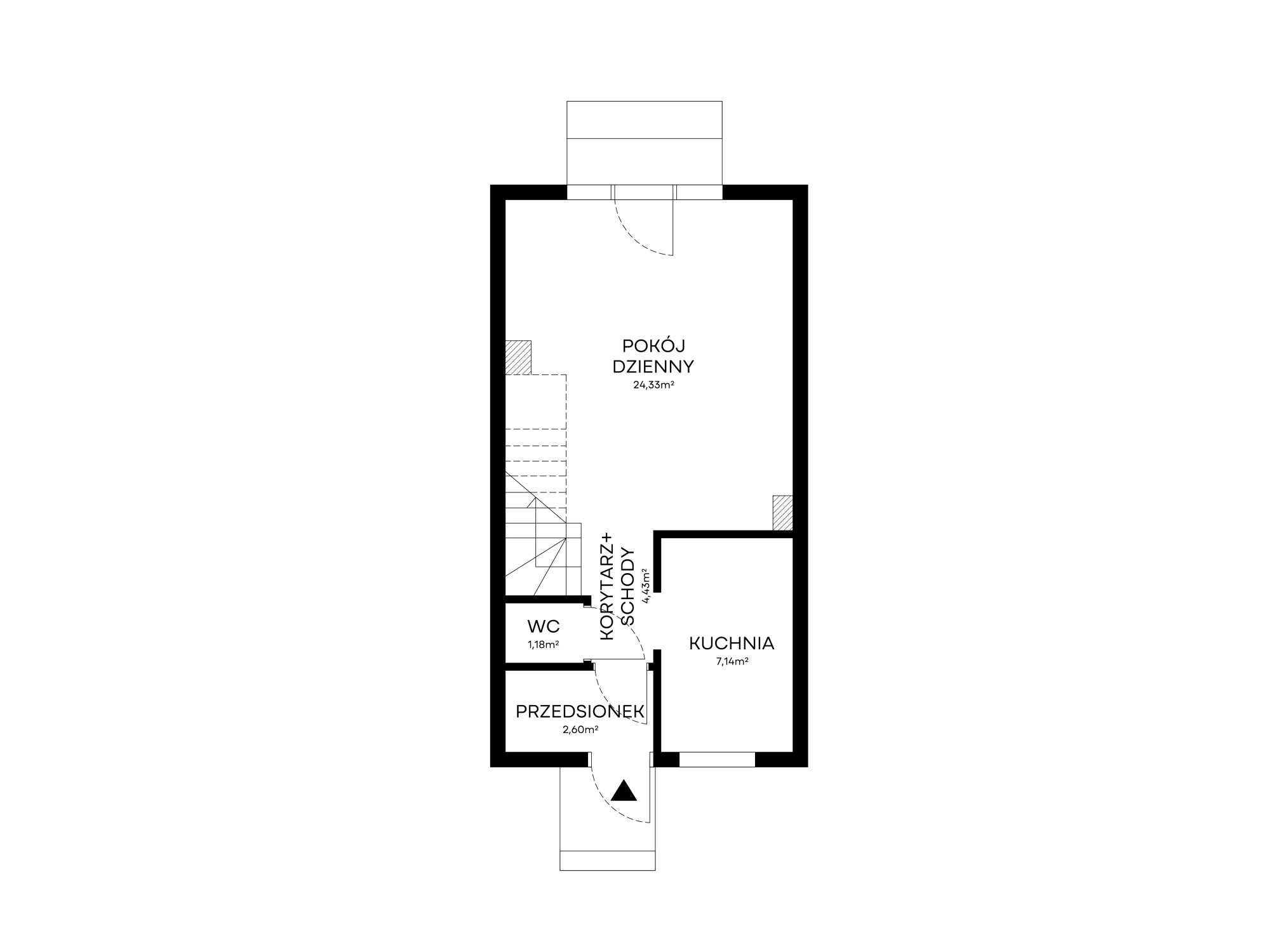
Bliźniak na sprzedaż w miejscowości Nowy Tuchom o całkowitej powierzchni po podłodze ok. 90 m², a powierzchnią użytkową wynoszącą 69,66 m². Przestronny salon z miejscem do zainstalowania kominka to idealne miejsce do odpoczynku, a zaadaptowanie poddasza dało możliwość stworzenia dodatkowego, czwartego pokoju, co zwiększyło funkcjonalność domu. Zbudowany został w 2017 roku, a do korzystania jest działka o powierzchni około 160 m2.
Ekspozycja salonu i ogrodu od strony wschodniej.
LOKALIZACJA:
Osiedle dewelopera Chmara w Nowym Tuchomiu to dobre i popularne miejsce do życia z łatwym dostępem do Trójmiasta. Oferuje bliskość natury a jednocześnie dogodną infrastrukturę drogową, zapewniając dogodny dojazd do najważniejszych punktów w regionie. Pełne zaplecze handlowo-usługowe, szkoła oraz inne potrzebne usługi znajdują się w pobliskim Baninie, Tuchomiu lub Chwaszczynie. Tuchom położony jest w pobliżu drogi krajowej nr 20 dzięki czemu łatwo dotrzeć stąd do Gdańska (6 km), Gdyni (4 km), Obwodnicy Trójmiasta, czy Żukowa. Poza transportem własnym (samochodowym) do dyspozycji jest również transport autobusowy. Blisko do Obwodnicy Metropolitalnej.
DOM:
Dom w zabudowie bliźniaczej o powierzchni całkowitej ok. 90 m2 w miejscowości Nowy Tuchom. Powierzchnia użytkowa domu wynosi 69,66 m2.
Do dyspozycji właścicieli są trzy miejsca parkingowe tuż przed domem, co jest dużym atutem, zwłaszcza w codziennym użytkowaniu oraz zadaszony Garaż.
Uwaga! Forma własności jako lokal mieszkalny z udziałem w gruncie i założoną księgą wieczystą.
PARTER:
– przestronny salon z jadalnią oraz wyjściem do ogrodu o pow. ok. 22 m2,
– kuchnia z oknem otwarta na salon o pow. ok. 7 m2,
– toaleta o pow. ok. 1 m2,
– korytarz/schody,
– przedsionek i korytarz o łącznej pow. ok. 7 m2,
PIĘTRO:
– pokój / sypialnia o pow. ok. 12 m2 ( po podłodze ok. 14 m2 ),
– pokój / sypialnia o pow. ok. 10 m2 ( po podłodze ok. 12 m2 ),
– łazienka o pow. ok. 5 m2,
PODDASZE:
– zaadaptowane na dodatkowy pokój o pow. po podłodze ok. 20 m2.
INNE INFORMACJE:
– technologia budowlana: ściany zewnętrzne z gazobetonu o gr. 24 cm, konstrukcja dachu drewniana pokryta dachówką, okna PCV, a połaciowe drewniane, ogrzewanie (ciepła woda użytkowa) piecem dwufunkcyjnym na gaz, termoizolacja styropian o gr. 15 cm,
– Opłaty media według zużycia: woda i kanalizacja miejska, prąd/siła, gaz ziemny.
ZAPRASZAM NA PREZENTACJE!