повернутися

Номер пропозиції: PAN863681

Rumia, ul. Czereśniowa

104.68 m2 6 кімнати 0/2 Поверх /m²
Щомісячний платіж:

Орієнтовний платіж за кредитом з фіксованою процентною ставкою, початковим внеском 20% та терміном погашення 30 років.

розрахувати платіж

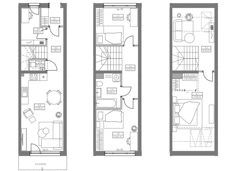
Опис

Rumia, ul. Czereśniowa

DOM 6 pokojowy W ZABUDOWIE SZEREGOWEJ, planowany odbiór marzec/kwiecień 2026, stan deweloperski LOKAL 30A/2

DOM
Mieszkanie o pow. 104,68m2 usytuowane w środkowej części szeregu w stanie deweloperskim, posiadające własny ogródek o powierzchni 24 m2. Ustawne, funkcjonalne wnętrze gwarantuje wygodę korzystania z mieszkania. Duże, panoramiczne okna zapewniają wyjątkowo jasną i nasłonecznioną przestrzeń, którą można zaaranżować zgodnie ze swoimi potrzebami.

W skład mieszkania wchodzi:
PARTER
– Wiatrołap 2,66m2
– Komunikacja 7,62m2
– mały pokój z oknem wyjściowym 5,28m2
– WC 1,12m2
– SALON + ANEKS KUCHENNY 21,52m2
OGRÓD 24 m2

I PIĘTRO
– Pokój 10,37m2
– Pokój 12,63m2
– Komunikacja 5,50m2
– Łazienka 5,36m2

II PIĘTRO
– Pokój 16,72m2 – możliwość zrobienia dodatkowej łazienki w sypialni
– Pokój 8,71m2

DODATKOWO
– Miejsce parkingowe dodatkowo płatne 20 000 zł, miejsce naziemne
– ogrzewanie podłogowe
– piec gazowy dwu funkcyjny
– dom w stanie deweloperskim, zdjęcia w ofercie mieszkania pokazowego

LOKALIZACJA
Inwestycja Osiedle Czereśniowe znajduje się w Rumii przy ul. Czereśniowej. Jest to świetna lokalizacja wśród osiedli domów jednorodzinnych skąd mamy szybki dostęp do następujących miejsc:
SZKOŁA PODSTAWOWA, HALA SPORTOWA MOSIR, SIŁOWNIA, LOKALNY RYNEK, NA DWORZEC, CENTRUM HANDLOWE

ZAPRASZAM NA PREZENTACJĘ

Детальні дані

Локація

Rumia, ul. Czereśniowa

Власність

Інше

Площа

104.68 m2

Площа ділянки

80 m2

Кімнати

6

Ванні кімнати

2

Туалети

1

Рік будівництва

2025

Поверх

0/2

Ціна за м²

Карта

Потрібна додаткова інформація
  • Потрібна додаткова інформація
  • Хочу призначити презентацію

    Інформаційна клаузула

      Бажаний час зустрічі
      • 9:00
      • 10:00
      • 11:00
      • 12:00
      • 13:00
      • 14:00
      • 15:00
      • 16:00
      • 17:00
      • 18:00
      Інформаційна клаузула

        Інші форми покупки

        Тип нерухомості*
        • Квартира
        • Дім
        • Ділянка
        • Комерція
        • Гараж
        Інформаційна клаузула

        Калькулятор розстрочки кредиту

        Розрахуйте приблизний платіж по іпотеці

        lat

        Орієнтовний платіж за кредитом з фіксованою процентною ставкою, початковим внеском 20% та терміном погашення 30 років.

        Щомісячний платіж:

        Розрахуйте свою кредитоспроможність за допомогою нашого іпотечного консультанта

        Перевірте свою платоспроможність

        Купуйте у нас. Чому це того варте?

        0% комісії від покупця

        Без додаткових або прихованих витрат

        * застосовується до пропозицій, позначених знаком «Купити без комісії»

        Agencja nieruchomości Partnerzy

        Схожі пропозиції

        111 m2 4 кімнати 0/1 Поверх /m²
        120 m2 4 кімнати 0/1 Поверх /m²
        128.9 m2 4 кімнати 0/1 Поверх /m²
        98.36 m2 4 кімнати 0/1 Поверх /m²
        110 m2 5 кімнати 0/1 Поверх /m²
        70 m2 2 кімнати 0/1 Поверх /m²