Description
Sopot, Górny, ul. Ignacego Krasickiego
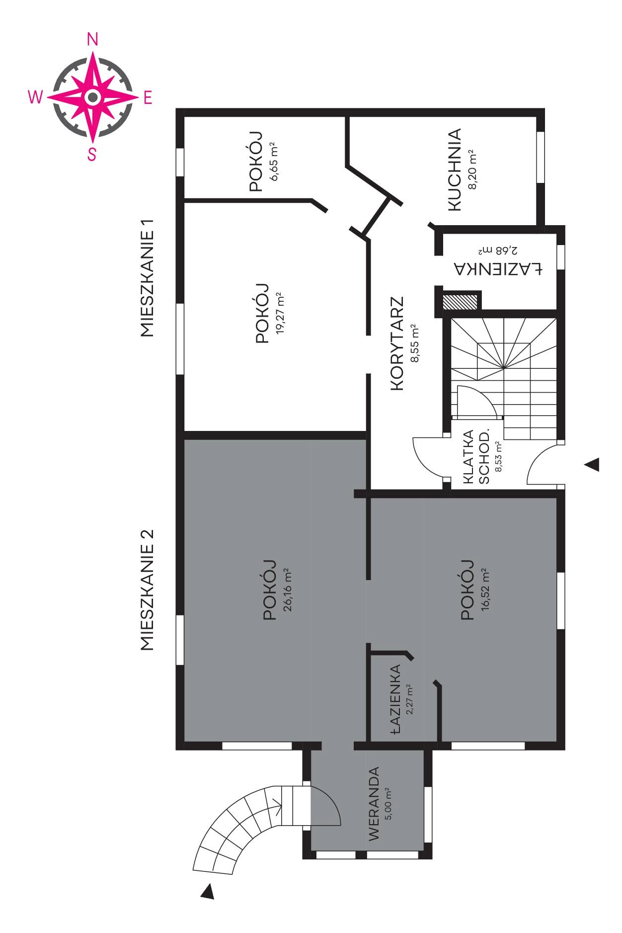
Na sprzedaż przestronne, rozkładowe, 4 pokojowe, mieszkanie położone w zacisznej uliczce Sopotu Górnego na parterze kameralnej kamienicy.
Duże możliwości aranżacyjne sprawiły, że obecni właściciele podzielili mieszkanie, którego powierzchnia całkowita wynosi 94,29 m2 na dwa lokale mieszkalne, odpowiednio o powierzchni użytkowej 48,94 m2 oraz 45,35 m2, każdy z odrębnym wejściem.
Mieszkanie nr 1 składa się z:
– werandy 5,0 m2,
– pokoju 25,15 m2,
– kuchni 16,52 m2,
– łazienki 2,27 m2,
Mieszkanie nr 2. składa się z
– pokoju 19,27 m2,
-pokoju 6,65 m2,
– kuchni 8,20 m2,
– łazienki 2,68 m2,
– korytarza 8,55 m2,
Wysokość ścian wynos 315 cm. Okna wykonane z PCV a ich wystawa na południe, wschód oraz zachód sprawia, że wnętrza są dobrze doświetlone.
Instalacja elektryczna miedziana, pod panelami podłogowymi znajdują się oryginalne ponad 100 letnie deski.
Za ogrzewanie odpowiada piec gazowy, natomiast ciepła woda użytkowa podgrzewana jest w bojlerach (istnieje możliwość jej podgrzania również przez piec gazowy).
Do mieszkania przynależy cały 30m2 ocieplony, strych gdzie można zrobić dodatkowe mieszkanie oraz przestronna piwnica o powierzchni 10,18m2.
Mieszkanie mieści się w kamienicy wzniesionej z cegły w 1918 roku, która mierzy łącznie trzy kondygnacje zwieńczonej wyremontowanym w 1998 roku dachem pokrytym dachówką ceramiczną. Klatka schodowa wyremontowana ok 10 lat temu.
W budynku mieszczą się tylko 3 lokale mieszkalne.
Nieruchomość jest położona w spokojnej, uliczce w sąsiedztwie skweru Michała Urbaniaka. Zabudowa towarzysząca to inne przedwojenne kamienice .
Miejsce dobrze skomunikowane przystanek autobusowy oddalony zaledwie w odległości ok 100 m. natomiast dworzec kolejowy o odległości 250 m.
Nieruchomość ma duży potencjał aranżacyjny oraz inwestycyjny! Polecam i zapraszam na prezentację!