back

Offer number: PAN265363

Gdynia, Śródmieście, ul. Świętojańska

87.5 m2 4 rooms 1/4 floor /m²
Monthly installment:

Estimated loan installment with fixed interest rate, 20% down payment and repayment period of 30 years.

calculate installment
commercial sale

Description

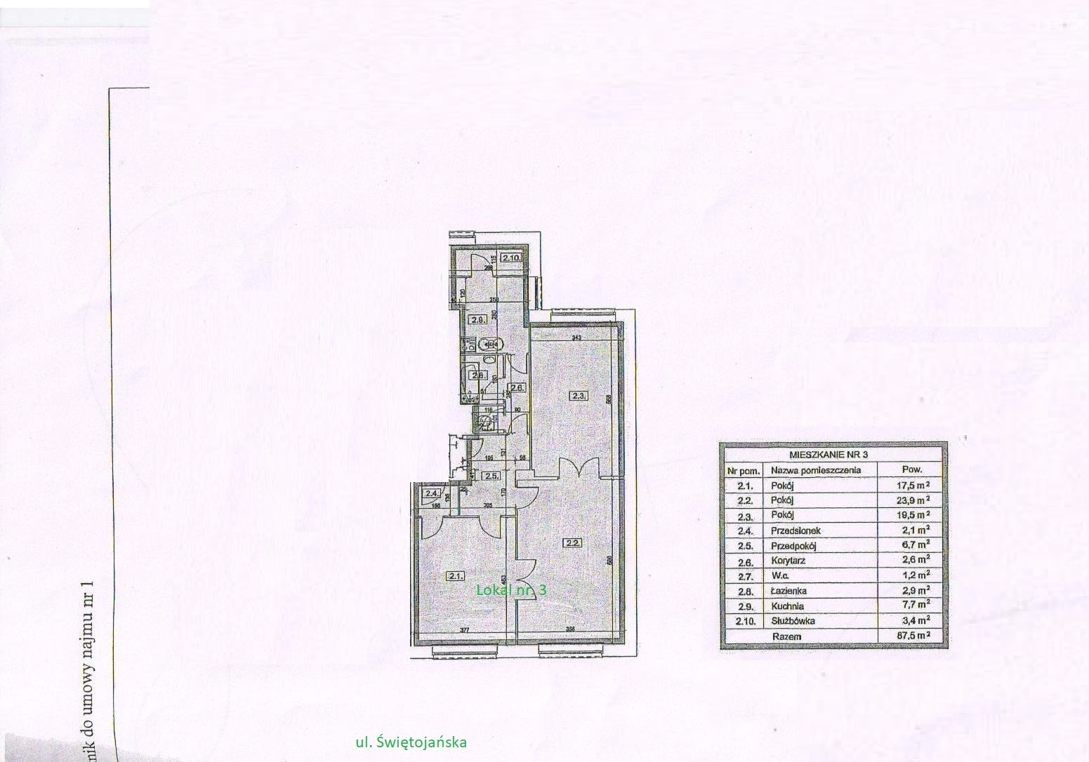
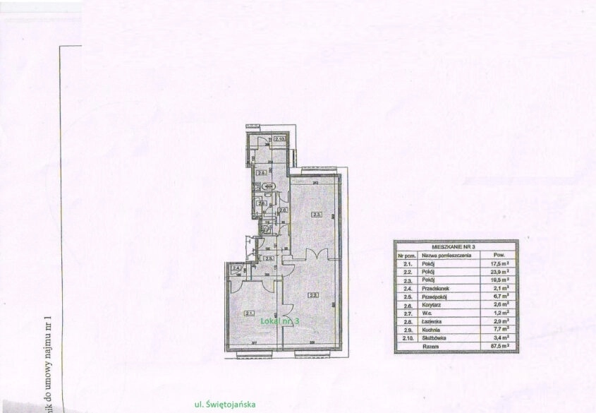
Lokal Usł – Biurowy na Świętojańskiej

LOKAL BIUROWO – USŁUGOWY 87,5m2 + ARCHIWUM 93,5m2
NOWA WINDA

LOKALIZACJA:
Lokal znajduje się w ścisłym CENTRUM GDYNI przy jednej z najbardziej popularnych ulic, ul. Świętojańskiej.

BUDYNEK:
Kamienica z lat ’30 w bardzo dobrym stanie, przez kilka lat funkcjonująca jako placówka bankowa od parteru po pierwsze piętro, piwnica pełniła funkcję archiwum.

LOKAL:
Lokal na I piętrze o pow. 87,5 m2, oryginalnie 4 pokojowy plus piwnica 93,5m2

W skład mieszkania/biura wchodzą:
– 4 POKOJE
– KUCHNIA
– ŁAZIENKA
– PRZEDSIONEK
– WC
– PRZEDPOKÓJ

Istnieje możliwość uzyskania pozwolenia na przebudowę przedmiotowego lokalu na 4 samodzielne apartamenty inwestycyjne – każdy będzie miał niezależne wejście z korytarza, osobną łazienkę oraz aneks kuchenny.

DODATKOWO:
Miejskie miejsca postojowe dla klientów i użytkowników lokali bezpośrednio przy wejściu do budynku.
– Wysoki standard wykończenia całej kamienicy ( nowa elewacja , nowe okna , nowa winda )
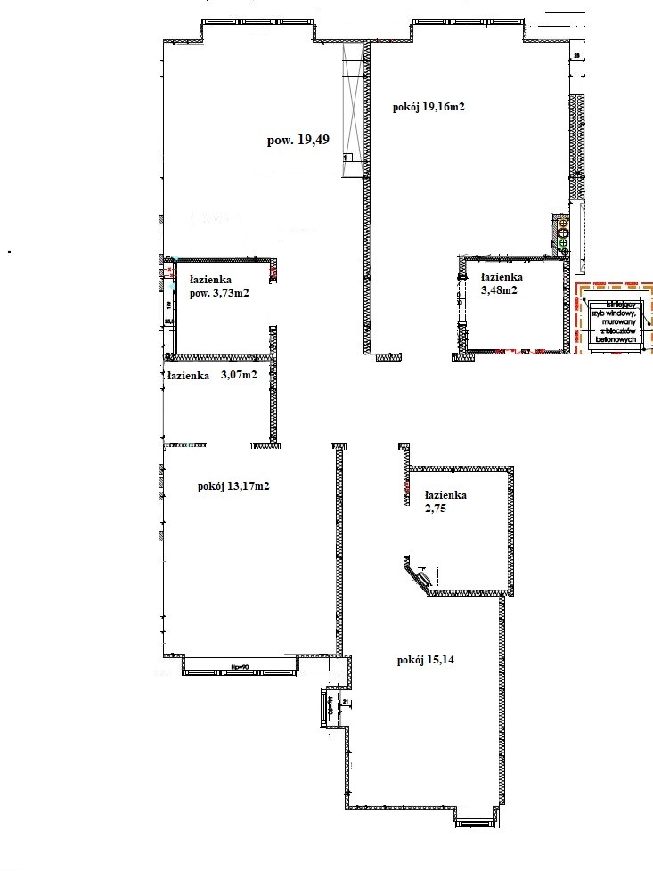
– piwnica ( magazyn archiwum) o pow. 93,5m2 w idealnym stanie
– ogrzewanie miejskiej i ciepła woda miejska
cena ofertowa jest ceną netto, VAT 23%.

ZAPRASZAM NA PREZENTACJĘ!

Detailed information

Location

Gdynia, Śródmieście, ul. Świętojańska

Commercial type

Office

Ownership

Other

Area

87.5 m2

Rooms

4

Year of construction

1930

Floor

1/4

Elevator

Yes

Heating

CO municipal

Price per m²

Map

I need more information
  • I need more information
  • I want to schedule a viewing

    Information clause

      Preferred meeting time
      • 9:00
      • 10:00
      • 11:00
      • 12:00
      • 13:00
      • 14:00
      • 15:00
      • 16:00
      • 17:00
      • 18:00
      Information clause

        Other forms of purchase

        Property type*
        • Apartment
        • House
        • Plot
        • Komercja
        • Garage
        Information clause

        Loan installment calculator

        Calculate your approximate mortgage payment

        lat

        Estimated loan installment with fixed interest rate, 20% down payment and repayment period of 30 years.

        Monthly installment:

        Calculate your borrowing capacity with our Mortgage Advisor

        Check your creditworthiness

        Buy with us. Why is it worth it?

        0% commission from the Buyer

        No additional or hidden costs

        * applies to offers marked with the Buy without commission sign

        Agencja nieruchomości Partnerzy