back

Offer number: PAN935552

Połczyno, ul. Sosnowa

139.86 m2 5 rooms 0/1 floor /m²
Monthly installment:

Estimated loan installment with fixed interest rate, 20% down payment and repayment period of 30 years.

calculate installment

Description

Ładny oszczędny dom, pompa-panele PV-rekuperacja

DOM: na sprzedaż bardzo ładny wolnostojący dom w Połczynie. Wybudowany w stylu domów pasywnych. Zastosowanie głębinowej pompy ciepła, fotowoltaiki, rekuperacji, a także bardzo skutecznej izolacji cieplnej (szary styropian, pianka PUR) umożliwiło znaczne ograniczenie miesięcznych kosztów ogrzewania i zużycia energii elektrycznej.  Dom zadbany i w pełni wykończony, sprzedawany z większością wyposażenia. Powierzchnia użytkowa domu według projektu to 140 m2. Na tę powierzchnię składają się:

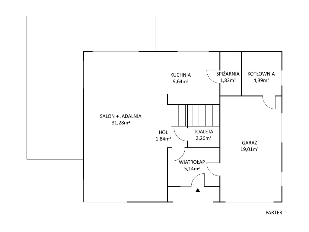
PARTER:
– salonu dzienny z jadalnią o łącznej pow. ok. 31 m2 (z salonu wyjście na taras i do ogrodu),
– kuchnia z oknem od stronu ogrodu o pow. ok. 10 m2,
– spiżarnia, do której jest dostęp z kuchni o pow. ok. 2 m2,
– łazienka z toaletą o pow. ok. 2 m2,
– komunikacja (wiatrołap,. hol) o pow. ok. 7 m2,
– garaż połączony z kotłownią o pow. odpowiednio ok. 19 m2 i 4 m2,
PIĘTRO:
– 4 pokoje/sypialnie o powierzchniach odpowiednio ok.: 11 m2 (z dodatkową garderobą o pow. ok. 3 m2), 10 m2, 10 m2, 6 m2,
– pomieszczenie gospodarcze, które może różną funkcję (np. suszarnia, pralnia, gabinet, garderoba) o pow. ok. 4 m2,
– łazienka o pow. ok. 8 m2.
– komunikacja (hol, schody) o pow. ok. 12 m2.

DZIAŁKA: wolnostojący dom posadowiony jest na prostokątnej działce o powierzchni 612 m2. Ogród ładnie zaprojektowany, oświetlony i zagospodarowany: trawnik, iglaki, byliny, placyk zabaw. W ogrodzie automatyczny system podlewania oparty na firmie Gardena. Na teren posesji prowadzi automatycznie otwierana brama. Na działce postawiony dodatkowo niezależny garaż na 1 samochód, również z bramą sterowaną na pilota.

OKOLICA: Połczyno to wieś kaszubska położona w gminie Puck przy drodze wojewódzkiej nr 213. Do Portu Rybackiego, Molo i plaży w Pucku ok. 6 km, co samochodem zajmuje 10-15 minut. Bliskość morza, plaży, promenady, portu jachtowego oraz wielu udogodnień potrzebnych w życiu codziennym sprawia, że można tutaj znaleźć Swoje Miejsce. Zatoka Pucka to płytka zatoka będąca częścią Morza Bałtyckiego (Zatoki Gdańskiej). Zatoka jest wyśmienitym miejscem dla osób uprawiających sporty wodne, najpopularniejszym ośrodkiem do uprawiania KITESURFINGU w Polsce. Wzdłuż brzegu biegnie droga rowerowa.

POZOSTAŁE INFORMACJE:
– fotowoltaika „na starych” zasadach, gruntowa pompa ciepła, rekuperacja, stacja uzdatniania wody wraz z filtrem na wejściu do domu, instalacja odkurzacza centralnego, klimatyzacja zamontowana na piętrze w części wspólnej, wszędzie ogrzewanie podłogowe,
– dom podłączony do kanalizacji,
– do domu podciągnięty światłowód,
– na strychu dodatkowa powierzchnia do przechowywania (schody nożycowe),
– okna PCV 3-szybowe,
– miejsce w garażach na 2 samochody (1 w bryle budynku, 1 w wolnostojącym garażu na działce).

ZAPRASZAM NA PREZENTACJĘ!

Detailed information

Location

Połczyno, ul. Sosnowa

Building type

Detached

Ownership

Other

Area

139.86 m2

Plot Area

612 m2

Rooms

5

Bathrooms

2

Year of construction

2019

Floor

0/1

Balcony/terrace

Yes

Garage/parking place

Yes

Electricity

Yes

Water

Yes

Sewerage

Yes

Condition

Very good

Heating

Heat pump

Price per m²

Map

I need more information
  • I need more information
  • I want to schedule a viewing

    Information clause

      Preferred meeting time
      • 9:00
      • 10:00
      • 11:00
      • 12:00
      • 13:00
      • 14:00
      • 15:00
      • 16:00
      • 17:00
      • 18:00
      Information clause

        Other forms of purchase

        Property type*
        • Apartment
        • House
        • Plot
        • Komercja
        • Garage
        Information clause

        Loan installment calculator

        Calculate your approximate mortgage payment

        lat

        Estimated loan installment with fixed interest rate, 20% down payment and repayment period of 30 years.

        Monthly installment:

        Calculate your borrowing capacity with our Mortgage Advisor

        Check your creditworthiness

        Buy with us. Why is it worth it?

        0% commission from the Buyer

        No additional or hidden costs

        * applies to offers marked with the Buy without commission sign

        Agencja nieruchomości Partnerzy