Description
Gdynia, Śródmieście, ul. Świętojańska
PRESTIŻOWA LOKALIZACJA, OGROMNE MOŻLIWOŚCI ARANŻACYJNE!
LOKALIZACJA:
Ulica Świętojańska to najważniejsza, reprezentacyjna ulica Gdyni. Uznawana za tętniące serce miasta. Znajduje się tu kilkaset lokali użytkowych, eleganckie butiki, liczne sklepy, punkty usługowe, piekarnie, cukiernie, restauracje czy kafejki. Wzdłuż całej arterii swoje siedziby mają liczne banki i kancelarie prawnicze. Klienci maja do nich łatwy dostęp dzięki wielu, płatnym miejscom parkingowym. Zaledwie 2 minutowy spacer dzieli nas od Skweru Kościuszki i Placu Kaszubskiego. W pobliżu znajduje się również Park Rady Europy oraz Park im. Marii i Lecha Kaczyńskich. Do plaży miejskiej dojdziemy w ok. 7 minut. Naprzeciwko bloku znajduje się przystanek autobusowy. W ok. 10 minut pieszo dojdziemy do SKM Gdynia Główna.
BUDYNEK:
Kamienica wybudowana w pierwszej połowie XX wieku, w technologii murowanej. Kamienica składa się z dwóch adresów i dwóch klatek schodowych. Budynek jest w całości podpiwniczony, sukcesywnie remontowany przez Wspólnotę mieszkaniową. Klatka schodowa zabezpieczona domofonem. W budynku nie ma windy.
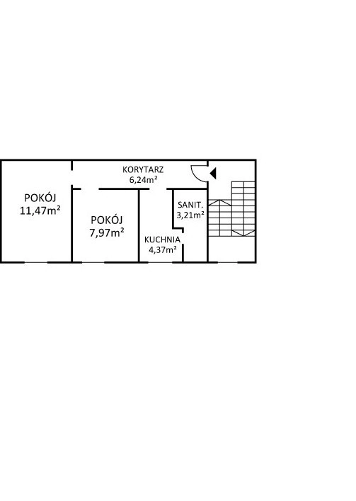
MIESZKANIE:
Mieszkanie o powierzchni użytkowej 33,26m2, położone na 3 piętrze, z widokiem na wewnętrzne podwórze (wejście z klatki schodowej od podwórza):
-Pokój (11,47m2)
-Pokój (7,97m2)
-Kuchnia (4,37m2)
-Sanitariat (3,21m2)
-Hall (6,24m2)
DODATKOWE INFORMACJE:
-Mieszkanie wymaga generalnego remontu
-Czynsz ok. 375 zł lato/ 570 zł zima
-Pokoje NIEPRZECHODNIE-mieszkania rozkładowe
-Ogrzewanie z sieci miejskiej
-Woda podgrzewana bojlerem elektrycznym
-Wysokość pomieszczeń: 3m
-Okna drewniane, WSZYSTKIE wychodzą na podwórze
-Ekspozycja jednostronna -południowa
Zapraszam serdecznie do kontaktu i na prezentację!