Description
Dom szeregowy 6 pok. gotowy po odbiorach
DOM 6 pokojowy W ZABUDOWIE SZEREGOWEJ, PO ODBIORACH, stan deweloperski – DOSTĘPNY OD ZARAZ
LOKAL G1
LOKALIZACJA
Inwestycja Osiedle Czereśniowe znajduje się w Rumii przy ul. Czereśniowej. Jest to świetna lokalizacja wśród osiedli domów jednorodzinnych skąd mamy szybki dostęp do następujących miejsc:
SZKOŁA PODSTAWOWA, HALA SPORTOWA MOSIR, SIŁOWNIA, LOKALNY RYNEK, NA DWORZEC, CENTRUM HANDLOWE
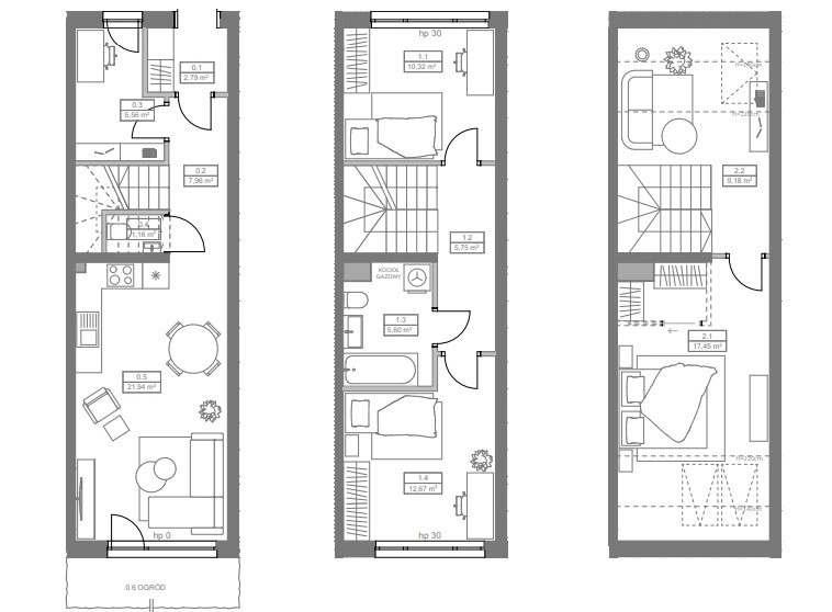
DOM
Mieszkanie o pow. użytkowej 102m2 usytuowane w środkowej części szeregu w stanie deweloperskim, posiadające własny ogródek o powierzchni 21,29 m2. Ustawne, funkcjonalne wnętrze gwarantuje wygodę korzystania z mieszkania. Duże, panoramiczne okna zapewniają wyjątkowo jasną i nasłonecznioną przestrzeń, którą można zaaranżować zgodnie ze swoimi potrzebami.
W skład mieszkania wchodzi:
PARTER
– Wiatrołap 2,66m2
– Komunikacja 7,62m2
– mały pokój z oknem wyjściowym 5,28m2
– WC 1,12m2
– SALON + ANEKS KUCHENNY 21,52m2
OGRÓD 23,5m2
I PIĘTRO
– Pokój 10,37m2
– Pokój 12,63m2
– Komunikacja 5,50m2
– Łazienka 5,36m2
II PIĘTRO
– Pokój 16,72m2 – możliwość zrobienia dodatkowej łazienki w sypialni
– Pokój 8,71m2
DODATKOWO
– Miejsce parkingowe dodatkowo płatne 20 000 zł, miejsce naziemne
– ogrzewanie podłogowe
– piec gazowy dwu funkcyjny
– dom w stanie deweloperskim, zdjęcia w ofercie mieszkania pokazowego
ZAPRASZAM NA PREZENTACJĘ