повернутися

Номер пропозиції: PAN210554

Ostrzyce, ul. Ramlejska

1267 m2 /m²
Щомісячний платіж:

Орієнтовний платіж за кредитом з фіксованою процентною ставкою, початковим внеском 20% та терміном погашення 30 років.

розрахувати платіж

Опис

Ostrzyce, ul. Ramlejska

Działka budowlana z MPZP na Kaszubach – Ostrzyce, blisko jezior i lasu.

LOKALIZACJA:
Na sprzedaż działka budowlana położona we wsi Ostrzyce (gm. Somonino, pow. kartuski), w otoczeniu lasów i jezior, w sercu Szwajcarii Kaszubskiej.
Nieruchomość znajduje się w spokojnej okolicy, w sąsiedztwie jezior Ostrzyckiego, Brodno Wielkie i Trzebno – idealne miejsce dla osób ceniących ciszę i kontakt z naturą.
 
DZIAŁKA:
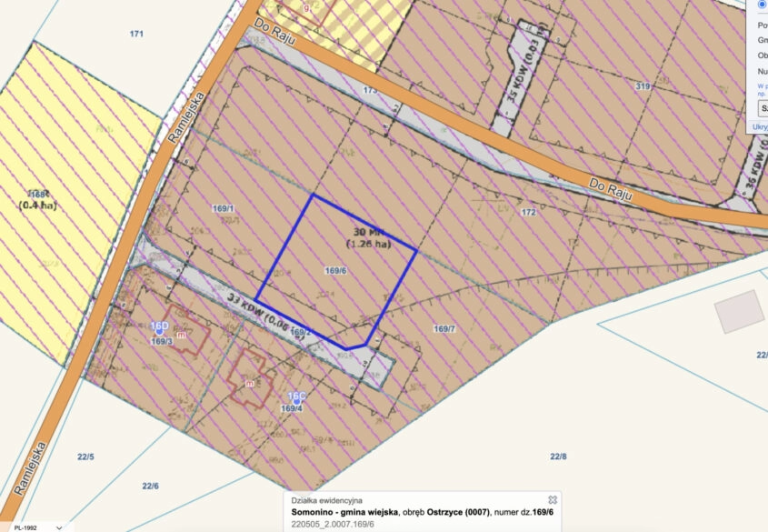
Działka o powierzchni 1267 m², w kształcie zbliżonym do kwadratu, o lekko nachylonym terenie. Dojazd do nieruchomości prowadzi utwardzoną drogą z płyt betonowych (ok. 100 m drogi prywatnej), która łączy się z gminną, asfaltową ulicą Ramlejską. W drodze dostępne media: prąd i woda.

MPZP  UCHWAŁA NR LV/522/2023 RADY GMINY SOMONINO:

Teren oznaczony symbolem 30 MN (zabudowa mieszkaniowa jednorodzinna wolnostojąca, jednolokalowa).
Wymogi szczegółowe dla symbolu 30 MN:
– maksymalna powierzchnia zabudowy: 30%,
– minimalny udział powierzchni biologicznie czynnej: 40%,
– maksymalna intensywność zabudowy: 0,7,
– maksymalna wysokość zabudowy: 11 m,
– w tym maksymalna wysokość budynków i budowli pomocniczych: 6 m,
– dopuszcza się sytuowanie budynków gospodarczych, garażowych, wiat oraz stacji transformatorowych w odległości 1,5 m od granicy działki,
– dopuszcza się lokalizację budynków i budowli pomocniczych, miejsc postojowych, zieleni, oczek wodnych oraz urządzeń i sieci infrastruktury technicznej,
– dachy dwuspadowe lub wielospadowe o kącie nachylenia głównych połaci od 25° do 45°,
– dopuszcza się podpiwniczenia budynków,
– poziom posadowienia parteru względem terenu: nie wyżej niż 0,6 m n.p.t.

INFORMACJE DODATKOWE:
Pinezka: https://maps.app.goo.gl/G7jyxCzqnvu1oHpWA 
Geoportal: https://mapy.geoportal.gov.pl/imap/Imgp_2.html?locale=pl&gui=new&sessionID=3AFB2D22-8BB5-450C-9BE5-71E35EDECAC0
Uchwała: http://g.ekspert.infor.pl/p/_dane/akty_pdf/U79/2023/276/4377.pdf

Serdecznie zapraszam na prezentacje! Chętnie odpowiem na Państwa pytania.

Детальні дані

Локація

Ostrzyce, ul. Ramlejska

Власність

Інше

Площа ділянки

1267 m2

Ціна за м²

Карта

Потрібна додаткова інформація
  • Потрібна додаткова інформація
  • Хочу призначити презентацію

    Інформаційна клаузула

      Бажаний час зустрічі
      • 9:00
      • 10:00
      • 11:00
      • 12:00
      • 13:00
      • 14:00
      • 15:00
      • 16:00
      • 17:00
      • 18:00
      Інформаційна клаузула

        Інші форми покупки

        Тип нерухомості*
        • Квартира
        • Дім
        • Ділянка
        • Комерція
        • Гараж
        Інформаційна клаузула

        Калькулятор розстрочки кредиту

        Розрахуйте приблизний платіж по іпотеці

        lat

        Орієнтовний платіж за кредитом з фіксованою процентною ставкою, початковим внеском 20% та терміном погашення 30 років.

        Щомісячний платіж:

        Розрахуйте свою кредитоспроможність за допомогою нашого іпотечного консультанта

        Перевірте свою платоспроможність

        Купуйте у нас. Чому це того варте?

        0% комісії від покупця

        Без додаткових або прихованих витрат

        * застосовується до пропозицій, позначених знаком «Купити без комісії»

        Agencja nieruchomości Partnerzy

        Схожі пропозиції