Опис
Gdańsk, Kokoszki
OBIEKT IDEALNY DO PROWADZENIA RÓŻNORODNYCH FORM DZIAŁALNOŚCI
Kontakt do agenta prowadzącego: Justyna 530 099 671
LOKALIZACJA: nieruchomość znajduje się w tzw. pasie przemysłowym i jest zlokalizowana w pobliżu drogi krajowej nr 20 w Miszewku.
Nieruchomość sąsiaduje z Obwodnicą Metropolii Trójmiejskiej (w pobliżu węzła Miszewo), która umożliwia sprawny, bezpieczny i komfortowy przejazd od strony autostrady A1 oraz drogi ekspresowej S7 w kierunku zachodnim i północnym województwa pomorskiego, wyprowadzając ruch tranzytowy na dalsze odcinki trasy S6 w kierunku Lęborka, Słupska i Koszalina. Zapewnia dostępność komunikacyjną terenów leżących wzdłuż obecnych dróg krajowych nr 7 i 20, odciąża centrum Żukowa i Chwaszczyna oraz częściowo istniejącą drogę ekspresową S6 – Obwodnicę Trójmiasta.
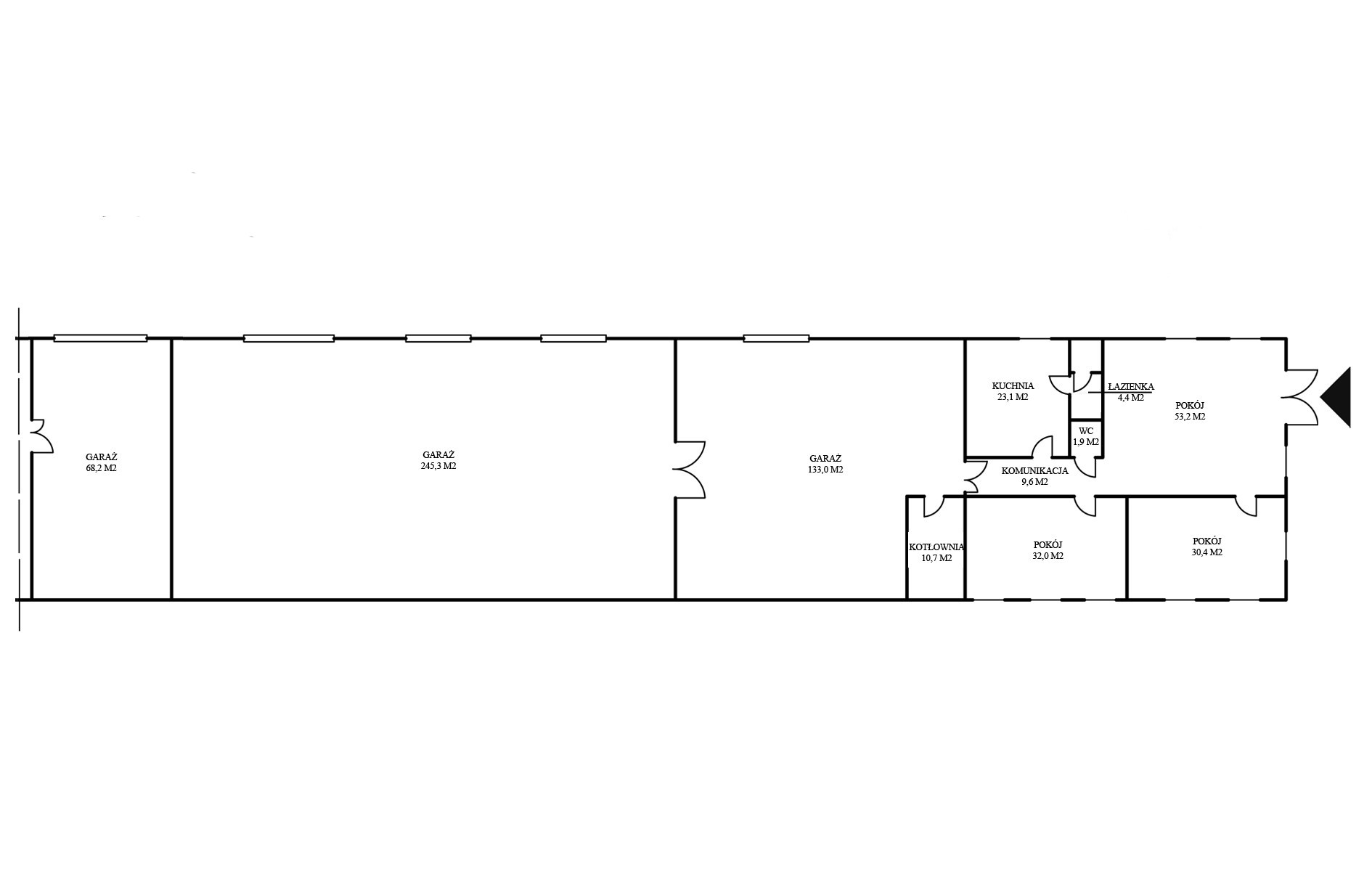
NIERUCHOMOŚĆ:
działka o powierzchni 2540 m2 zabudowana budynkiem z częścią biurową (ok. 190 m2) oraz halami o powierzchni łącznej około 390 m2 i wysokości 5 oraz 3 metry.
Obiekt idealny do prowadzenia różnorodnych form działalności i wynajmu.
Ogrzewany piecem na pelet, hale również ogrzewane i wentylowane.
Obiekt o nowoczesnej technologii , przystosowany do norm i standardów europejskich (monitoring, alarm, szybki Internet, brama automatyczna, duża moc przyłącza elektrycznego pod produkcję, niskie koszty ogrzewania i wody).
Cena 25.000 netto.
Zadzwoń bezpośrednio do agenta prowadzącego po więcej informacji: Justyna 530 099 671
Zapraszam na prezentację.