wróć

Oferta numer: PAN301379

Puck, ul. Sosnowa

139.86 m2 5 pok. 0/1 piętro /m²
Miesięczna rata:

Szacowana rata kredytu przy oprocentowaniu stałym, wkładzie własnym 35% i okresie spłaty 30 lat.

oblicz ratę

Opis

Przytulny dom, w stylu domów pasywnych

UWAGA! Dom położony w Połczynie, w pobliżu Pucka.

DOM: na sprzedaż bardzo ładny wolnostojący dom w Połczynie. Wybudowany w stylu domów pasywnych. Zastosowanie głębinowej pompy ciepła, fotowoltaiki, rekuperacji, a także bardzo skutecznej izolacji cieplnej (szary styropian, pianka PUR) umożliwiło ograniczenie miesięcznych kosztów ogrzewania i zużycia energii elektrycznej do kilkudziesięciu złotych m-cznie.  Dom zadbany i w pełni wykończony, sprzedawany z większością wyposażenia. Powierzchnia użytkowa domu według projektu to 140 m2. Na tę powierzchnię składają się:

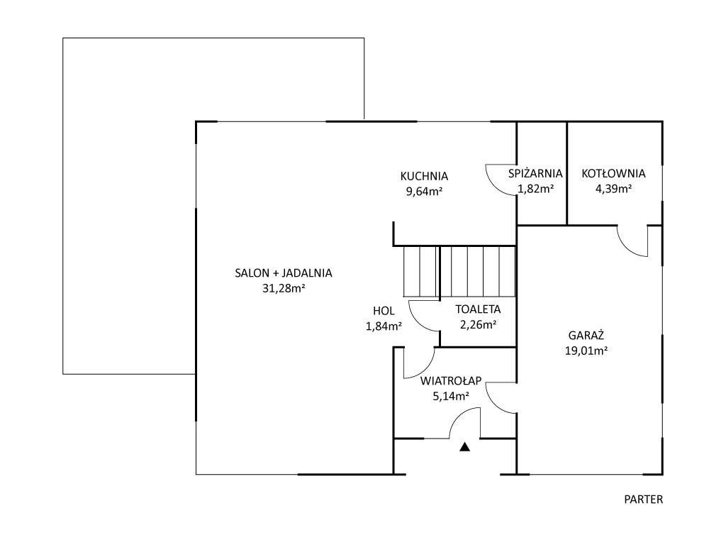
PARTER:
– salonu dzienny z jadalnią o łącznej pow. ok. 31 m2 (z salonu wyjście na taras i do ogrodu),
– kuchnia z oknem od stronu ogrodu o pow. ok. 10 m2,
– spiżarnia, do której jest dostęp z kuchni o pow. ok. 2 m2,
– łazienka z toaletą o pow. ok. 2 m2,
– komunikacja (wiatrołap,. hol) o pow. ok. 7 m2,
– garaż połączony z kotłownią o pow. odpowiednio ok. 19 m2 i 4 m2,
PIĘTRO:
– 4 pokoje/sypialnie o powierzchniach odpowiednio ok.: 11 m2 (z dodatkową garderobą o pow. ok. 3 m2), 10 m2, 10 m2, 6 m2,
– pomieszczenie gospodarcze, które może różną funkcję (np. suszarnia, pralnia, gabinet, garderoba) o pow. ok. 4 m2,
– łazienka o pow. ok. 8 m2.
– komunikacja (hol, schody) o pow. ok. 12 m2.

DZIAŁKA: wolnostojący dom posadowiony jest na prostokątnej działce o powierzchni 612 m2. Ogród ładnie zaprojektowany, oświetlony i zagospodarowany: trawnik, iglaki, byliny, placyk zabaw. W ogrodzie automatyczny system podlewania oparty na firmie Gardena. Na teren posesji prowadzi automatycznie otwierana brama. Na działce postawiony dodatkowo niezależny garaż na 1 samochód, również z bramą sterowaną na pilota.

OKOLICA: Połczyno to wieś kaszubska położona w gminie Puck przy drodze wojewódzkiej nr 213. Do Portu Rybackiego, Molo i plaży w Pucku ok. 6 km, co samochodem zajmuje 10-15 minut. Bliskość morza, plaży, promenady, portu jachtowego oraz wielu udogodnień potrzebnych w życiu codziennym sprawia, że można tutaj znaleźć Swoje Miejsce. Zatoka Pucka to płytka zatoka będąca częścią Morza Bałtyckiego (Zatoki Gdańskiej). Zatoka jest wyśmienitym miejscem dla osób uprawiających sporty wodne, najpopularniejszym ośrodkiem do uprawiania KITESURFINGU w Polsce. Wzdłuż brzegu biegnie droga rowerowa.

POZOSTAŁE INFORMACJE:
– fotowoltaika „na starych” zasadach, gruntowa pompa ciepła, rekuperacja, stacja uzdatniania wody wraz z filtrem na wejściu do domu, instalacja odkurzacza centralnego, klimatyzacja zamontowana na piętrze w części wspólnej, wszędzie ogrzewanie podłogowe,
– dom podłączony do kanalizacji,
– do domu podciągnięty światłowód,
– na strychu dodatkowa powierzchnia do przechowywania (schody nożycowe),
– okna PCV 3-szybowe,
– miejsce w garażach na 2 samochody (1 w bryle budynku, 1 w wolnostojącym garażu na działce).

ZAPRASZAM NA PREZENTACJĘ!

Dane szczegółowe

Lokalizacja

Puck, ul. Sosnowa

Typ budynku

Wolnostojący

Rodzaj własności

Inny

Powierzchnia

139.86 m2

Pow. działki

612 m2

Liczba pokoi

5

Liczba łazienek

2

Rok budowy

2019

Piętro

0/1

Balkon/taras

Tak

Garaż/miejsce parkingowe

Tak

Prąd

Tak

Woda

Tak

Kanalizacja

Tak

Stan

Bardzo dobry

Rodzaj ogrzewania

Pompa ciepła

Cena za m²

Mapa

Potrzebuję więcej informacji
  • Potrzebuję więcej informacji
  • Chcę umówić prezentację

    Klauzula informacyjna

      Preferowany czas spotkania
      • 9:00
      • 10:00
      • 11:00
      • 12:00
      • 13:00
      • 14:00
      • 15:00
      • 16:00
      • 17:00
      • 18:00
      Klauzula informacyjna

        Inne formy zakupu

        Typ nieruchomości*
        • Mieszkanie
        • Dom
        • Działka
        • Komercja
        • Garaż
        Klauzula informacyjna

        Kalkulator raty kredytowej

        Oblicz przybliżoną ratę kredytu hipotecznego

        lat

        Szacowana rata kredytu przy oprocentowaniu stałym, wkładzie własnym 35% i okresie spłaty 30 lat.

        Rata miesięczna:

        Oblicz swoją zdolność z naszym Doradcą ds. kredytów hipotecznych

        Sprawdź swoją zdolność

        Kup z nami. Dlaczego warto?

        0% prowizji od Kupującego

        żadnych dodatkowych i ukrytych kosztów

        * dotyczy ofert oznaczonych znaczkiem Kup bez prowizji

        Gwarantujemy bezpieczny i korzystny zakup

        zadbamy o bezpieczeństwo transakcji i wynegocjujemy najlepszą cenę.

        Posiadamy nowoczesne narzędzia prezentacji ofert

        dedykowana Przestrzeń Klienta z ofertami dopasowanymi do Twoich poszukiwań.

        Oferujemy skuteczną i bezpłatną pomoc w uzyskaniu kredytu

        ograniczymy formalności do minimum i wynegocjujemy najlepsze warunki.

        Agencja nieruchomości Partnerzy