Opis
NOWOCZESNE BIURO DLA TWOJEJ FIRMY PRZY SAMEJ SKM!
WYJĄTKOWY BUDYNEK BIUROWO-USŁUGOWY GOOD POINT 761 W CENTRUM SOPOTU!
LOKALIZACJA:
Budynek GOOD POINT 761 położony jest w samym centrum Sopotu przy Al. Niepodległości 761. Ze względu na jego usytuowanie przy głównej osi komunikacyjnej łączącej Gdańsk z Gdynią, w bezpośrednim sąsiedztwie Głównego Dworca kolejowego i SKM w Sopocie, jest to idealne miejsce na lokalizację biura czy kancelarii. W najbliższym otoczeniu GOOD POINT 761 znajdziemy pełne zaplecze handlowo – usługowe, Galerię Sopot z licznymi restauracjami, kawiarniami i sklepami. Spacerując, w kilka minut znajdziemy się na głównym, klimatycznym deptaku Monte Cassino, nad morzem czy też w Trójmiejskim Parku Krajobrazowym.
BUDYNEK:
Budynek GOOD POINT 761 ma cztery kondygnacje naziemne. Powstał jako unikalne połączenie starego z nowym. Starego, bo fasada GOOD POIT 761 widoczna od Alei Niepodległości jest całościowo zrekonstruowana od podstaw kamienica z XIX w. Z nowym, bo kamienica szklanym przejściem połączona jest z dobudowaną, nowoczesną częścią, wyposażoną w halę garażową i windę. Całość budynku zaprojektowana i wybudowana została w taki sposób, aby stworzyć propozycję dla firm, które szukają do prowadzenia swojego biznesu prestiżowego miejsca z niepowtarzalnym klimatem.
Do budynku przynależą miejsca postojowe na zamkniętej posesji, miejsca w hali garażowej, a dodatkowo niedaleko zlokalizowany jest kolejny parking.
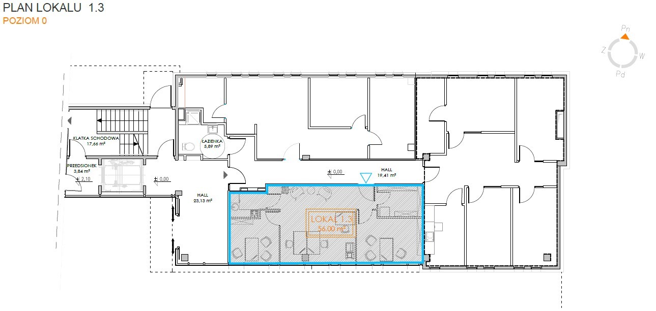
LOKAL:
Lokal o powierzchni 65,15m2 (lokal 56m2 + procentowy udział w częściach wspólnych budynku) położony na parterze. Składa się z trzech pomieszczeń, biurowej kuchni oraz serwerowni. Przystosowany jest do prowadzenia różnego rodzaju działalności biurowej.
Ceny podane w ogłoszeniu są cenami netto.
Do ceny najmu należy doliczyć opłatę administracyjno-eksploatacyjną w wysokości 25zł/m2.
Zużycie mediów takich jak energia elektryczna, woda, ścieki, c.o rozliczane jest według rzeczywistych pomiarów po zakończeniu każdego roku.
Kaucja zabezpieczająca wynosi 4 miesięczny czynsz najmu wraz z opłatami administracyjno- eksploatacyjnymi.
Istnieje możliwość wynajęcia miejsc postojowych naziemnych na terenie obiektu, oraz miejsc postojowych w podziemnej hali garażowej.










