Opis
Dom wolnostojący parterowy 225m2, ogród 939m2
Dom wolnostojący 5 pokojowy w stanie deweloperskim pow. całkowitej 225m2 na działce o pow. 939m2
LOKALIZACJA:
Różyny ul. Makowa gmina Pszczółki blisko Pruszcza Gdańskiego. Ciche i spokojne osiedle domów jednorodzinnych. Szybki dojazd do obwodnicy oraz do dworca PKP.
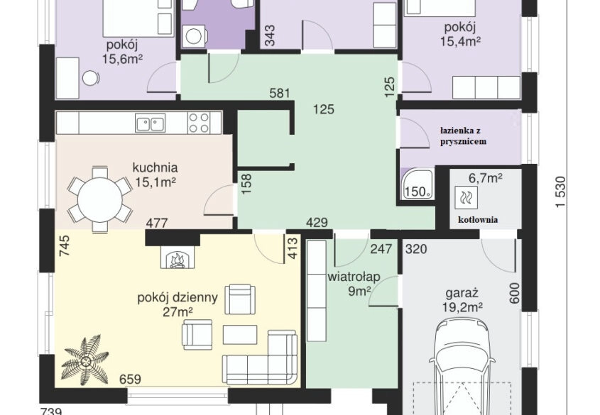
DOM
Dom wolnostojący o pow. 225m2 z garażem w bryle budynku oraz dużym strychem który może służyć jako 5 pokój. Dom w stanie deweloperskim zamkniętym z wygładzonymi ścianami pomalowanymi na biało. Działka 939m2
W skład domu wchodzi:
– SALON Z KUCHNIĄ
– 3 SYPIALNIE
– 2 ŁAZIENKI Z OKNEM
– DUŻY HOL Z MIEJSCEM NA GARDEROBĘ
– WIATROŁAP
– Duży 5 pokój na poddaszu o pow. całkowitej około 130m2, wysokość ok. 5 m
– GARAŻ W BRYLE BUDYNKU
Ściany wygładzone, zagruntowane gotowe do malowania.
Stan deweloperski zamknięty do wykończenia.
DODATKOWO:
– Ogrzewanie gazowe podłogowe w całym domu
– Materiał budowy POROTHERN
– Dodatkowe wyjście na grzejniki na ścianach z osobnym obiegiem grzania
– wyjście na kominek
– poddasze podniesione można zrobić 5 pokój lub dwa dodatkowej pokoje
– MEDIA: kanalizacja, światłowód, GAZ, woda, prąd
– Dachówka ceramiczna firmy CREATON
– Okna 3 szybowe
– Garaż w bryle budynku
– Sprzedaż od osoby prywatnej z podatkiem PCC 2%
– projekt domu: SŁONECZNA 3 BIS
ZAPRASZAM NA PREZENTACJĘ














