Opis
Dom (bliźniak) w prestiżowej dzielnicy Strzyża
Na sprzedaż wyjątkowy dom w zabudowie bliźniaczej z lat 30. XX wieku, położony w jednej z najbardziej atrakcyjnych dzielnic Gdańska – Strzyża. To centralna lokalizacja, doskonale skomunikowana z całą aglomeracją. W pobliżu znajduje się pełna infrastruktura, a także popularna dzielnica Garnizon, oddalona zaledwie o kilka minut spacerem. Strzyża zachowała swój willowy charakter z dużą ilością zieleni i starodrzewiem, co czyni ją idealnym miejscem do życia.
Nieruchomość
Dom wyróżnia się większą powierzchnią niż większość budynków w okolicy dzięki rozbudowie od strony ogrodu, przeprowadzonej w latach 90.
Na posesji znajduje się również przestronny, wolnostojący garaż na trzy stanowiska (50 m²), który może zostać przekształcony na warsztat, gabinet lub dodatkową przestrzeń użytkową.
Budynek na dużej, słonecznej działce o powierzchni 554 m², z ekspozycją południową.
Dom jest w dobrym stanie technicznym, jednak wymaga modernizacji, aby dostosować go do współczesnych technologii i nowoczesnych standardów wykończenia.
Atuty nieruchomości:
✅ Przestronna piwnica (90 m²) – idealna do aranżacji m.in. sauny, siłowni, pralni, garderoby lub innych pomieszczeń użytkowych.
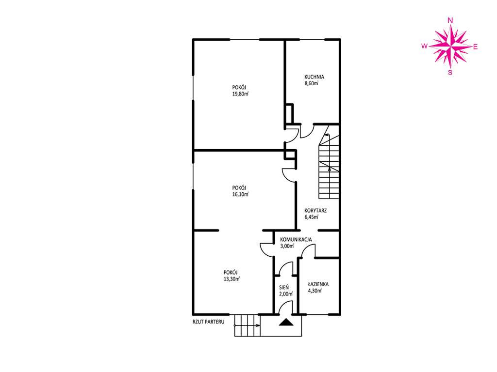
✅ Parter (90 m²) – przestronna i funkcjonalna przestrzeń z dużymi możliwościami adaptacyjnymi.
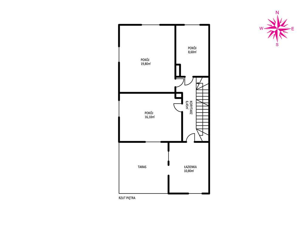
✅ Piętro (60 m²) – trzy duże sypialnie oraz przestronna łazienka. Możliwość wydzielenia czwartego pokoju poprzez zabudowę tarasu.
✅ Poddasze (ok. 40 m²) – doskonałe miejsce na apartament dla nastolatka, sypialnię master lub pokój rekreacyjny.
✅ Duży garaż wolnostojący (50 m²) – na trzy stanowiska, z opcją przekształcenia na warsztat lub gabinet.
✅ Piękna, południowa działka – gwarantująca doskonałe doświetlenie i komfortowy wypoczynek.
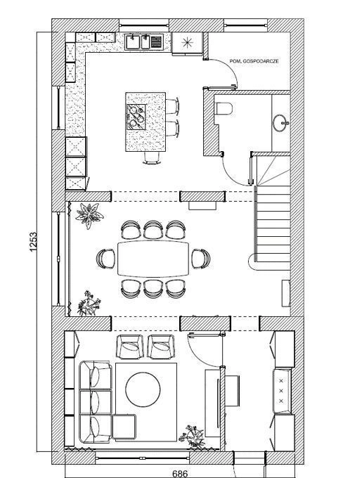
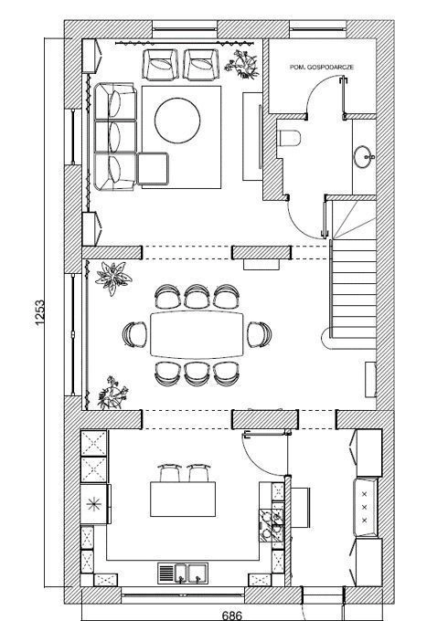
Nieruchomość oferuje ogromne możliwości aranżacyjne – przykładowe koncepcje adaptacji przedstawiono na załączonych rysunkach.
To doskonała okazja dla osób poszukujących domu z duszą, który można dostosować do własnych potrzeb i upodobań, ciesząc się prestiżową lokalizacją i dużą przestrzenią.




















