Opis
Centrum Starego Miasta – ul. Szeroka!
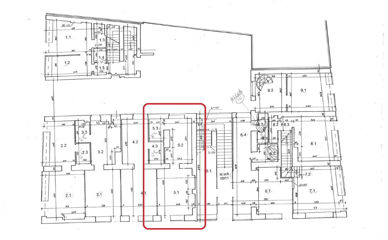
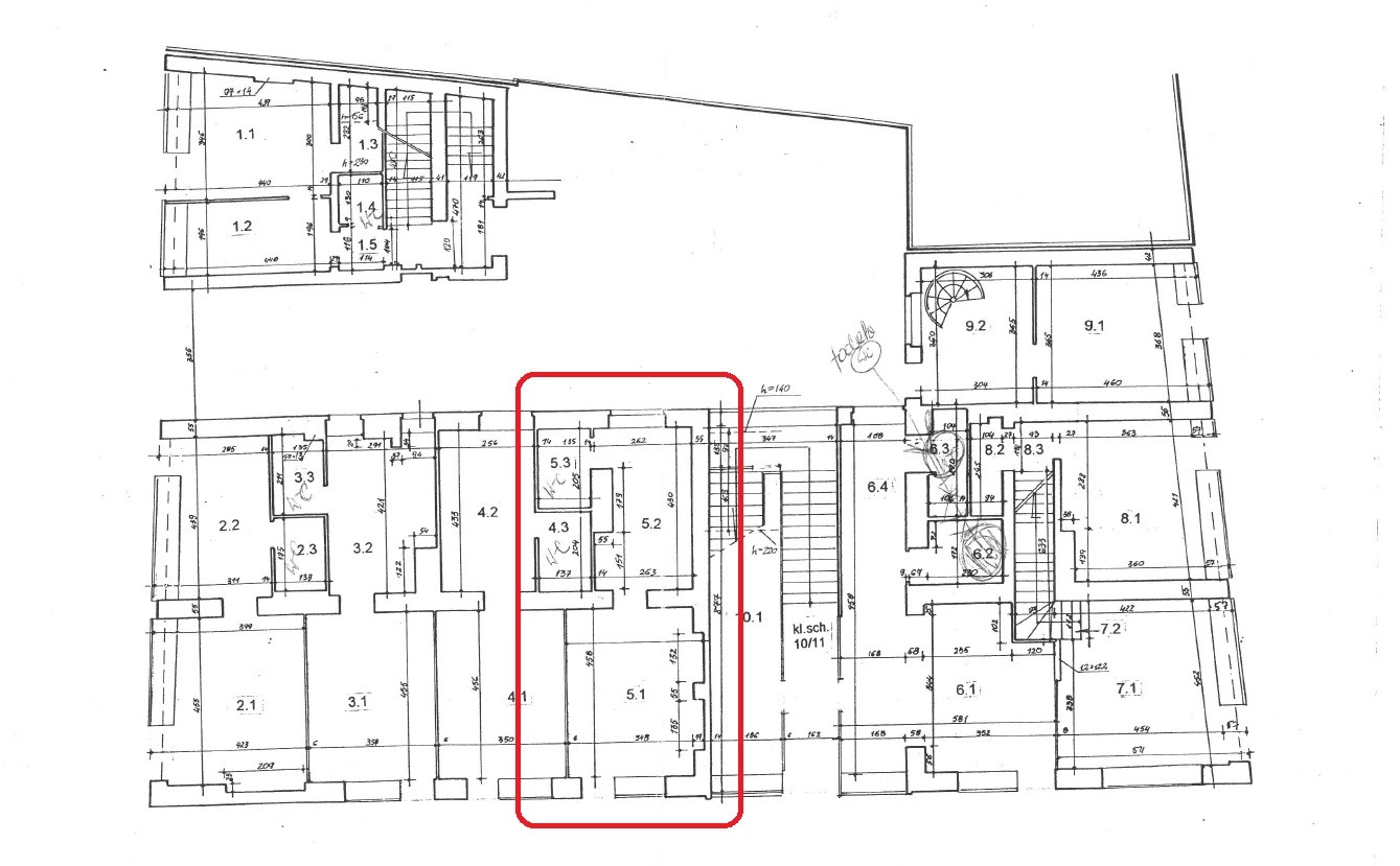
NIERUCHOMOŚĆ: lokal użytkowy o powierzchni 30,10 m2 (z nową witryną) znajduje się na parterze czteropiętrowej kamienicy. Lokal składa się z dwóch pomieszczeń oraz WC. Lokal posiada dwa niezależne wejścia: witrynę od frontu oraz wejście od zaplecza (np. do zatowarowania). Lokal idealnie nadaje się pod działalność biurową, usługową, medyczną, etc.
BUDYNEK: 4.-piętrowa kamienica, wzniesiona z cegły, dach pokryto dachówką ceramiczną. Ogólny stan całej nieruchomości jest bardzo dobry. W pobliżu nieruchomości znajdziemy ogólnodostępne miejsca postojowe.
OKOLICA: lokal znajduje się na Starym Mieście w Gdańsku przy ul. Szerokiej, w otoczeniu pięknych kamienic. Lokalizacja sprawia, że od Motławy dzieli nas kilkuminutowy spacer, w 5 minut pieszo dojdziemy do Fontanny Neptuna przy ul. Długiej. Lokal znajduje się w spokojnym miejscu, pomimo okolicy tłumnie odwiedzanej przez turystów.
KOMUNIKACJA: nieruchomość jest świetnie skomunikowana z całym Gdańskiem poprzez linie komunikacji miejskiej (zarówno autobusowe, jak i tramwajowe), w pobliżu znajduje się równiej Szybka Kolej Miejska SKM (10 minut spacerem).
OPŁATY: czynsz ok. 506 zł/m-c + opłaty eksploatacyjne + prąd wg. zużycia. Najemca ponosi koszty wynagrodzenia biura nieruchomości w wysokości jednomiesięcznego czynszu najmu.
KAUCJA: jednomiesięczny czynsz najmu ; okres najmu min. 1 rok.
DOSTĘPNOŚĆ: od zaraz.
ZAPRASZAM NA PREZENTACJĘ!











