wróć

Oferta numer: PAN248030

Łęgowo, ul. Spacerowa

80.47 m2 4 pok. 0/1 piętro /m²
Miesięczna rata:

Szacowana rata kredytu przy oprocentowaniu stałym, wkładzie własnym 35% i okresie spłaty 30 lat.

oblicz ratę

Opis

Bliźniak 4 pok, 2 miejsca parkingowe, ogród 120m2

DOM BLIŹNIAK 4 pokojowy, 2 miejsca parkingowe, ogród 120m2
Planowane oddanie do użytkowania koniec Października 2025
MEDIA: KANALIZACJA, OGRZEWANIE GAZOWE, PRĄD WODA, ŚWIATŁOWÓD
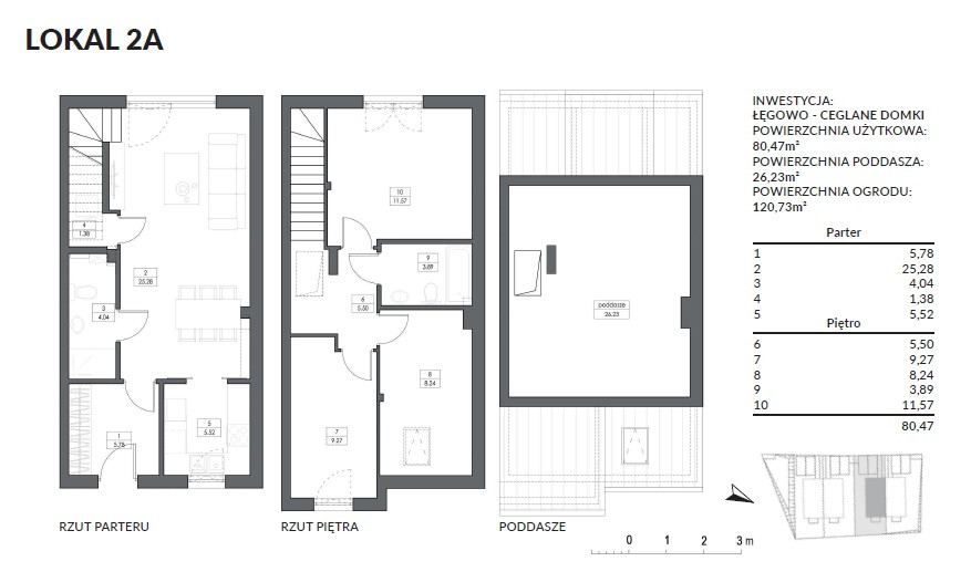
LOKAL A2

BUDYNEK
Budynek z 2025r w zabudowie bliźniaczej w stanie deweloperskim.
Pow. użytkowa 80,47m2 plus poddasze nieużytkowe o pow. 26,23m2. Powierzchnia ogrodu 120,73m2 – STRONA ZACHODNIA

W skład domu wchodzi
Parter (powierzchnia 42 m2):
– wiatrołap 5,78 m2
– kuchnia 5,52 m2
– salon 25,28 m2
– łazienka 4,04 m2 – prysznic
– extra pomieszczenie pod schodami na pralnie

Piętro 1 (powierzchnia 38,47 m2):
– sypialnia I 9,27 m2
– sypialnia II 8,24 m2
– sypialnia III 11,57 m2
– łazienka 3,89 m2 – wanna lub prysznic
– korytarz 5,50 m2

Poddasze nieużytkowe (pow. 26,23 m2)
Łączna powierzchnia lokalu: 106,70 m2 (użytkowa 80m47 + 26,23 poddasze)

GŁÓWNE ELEMNTY STANDARDU WYKOŃCZENIA:
– ogrzewanie podłogowe w całym mieszkaniu – termostaty dla każdego z pomieszczeń osobno
– piec gazowy dwu funkcyjny przepływowy firmy VICTRIX TERA V2 28 EU
– tynki gipsowe
– w salonie duże okna wraz z drzwiami przesuwnymi
– Płyta fundamentowa pod całym budynkiem (niweluje ryzyko spękań)
– Mury nośne oraz działowe z wysokiej jakości silikatów
– Strop żelbetonowy monolityczny
– wełna mineralna pod stropem dachu oraz w podłodze poddasza

DODATKOWO:
– W cenie 2 MIEJSCA POSTOJOWE
– Planowane oddanie do użytkowania koniec Października 2025
– bez podatku PCC, rynek pierwotny

LOKALIZACJA
Inwestycja położona ok 1 km od Różyn w miejscowości Łęgowo.
19km od Gdańska, 1 km do Pruszcza Gdańskiego, blisko do stacji PKP RÓŻYNY

ZAPRSZAM NA PREZENTACJĘ

Dane szczegółowe

Lokalizacja

Łęgowo, ul. Spacerowa

Typ budynku

Bliźniak

Rodzaj własności

Inny

Powierzchnia

80.47 m2

Pow. działki

120.73 m2

Liczba pokoi

4

Liczba łazienek

2

Rok budowy

2025

Piętro

0/1

Balkon/taras

Tak

Garaż/miejsce parkingowe

Tak

Stan

Deweloperski

Rodzaj ogrzewania

Gazowe

Cena za m²

Mapa

Potrzebuję więcej informacji
  • Potrzebuję więcej informacji
  • Chcę umówić prezentację

    Klauzula informacyjna

      Preferowany czas spotkania
      • 9:00
      • 10:00
      • 11:00
      • 12:00
      • 13:00
      • 14:00
      • 15:00
      • 16:00
      • 17:00
      • 18:00
      Klauzula informacyjna

        Inne formy zakupu

        Typ nieruchomości*
        • Mieszkanie
        • Dom
        • Działka
        • Komercja
        • Garaż
        Klauzula informacyjna

        Kalkulator raty kredytowej

        Oblicz przybliżoną ratę kredytu hipotecznego

        lat

        Szacowana rata kredytu przy oprocentowaniu stałym, wkładzie własnym 35% i okresie spłaty 30 lat.

        Rata miesięczna:

        Oblicz swoją zdolność z naszym Doradcą ds. kredytów hipotecznych

        Sprawdź swoją zdolność

        Kup z nami. Dlaczego warto?

        0% prowizji od Kupującego

        żadnych dodatkowych i ukrytych kosztów

        * dotyczy ofert oznaczonych znaczkiem Kup bez prowizji

        Gwarantujemy bezpieczny i korzystny zakup

        zadbamy o bezpieczeństwo transakcji i wynegocjujemy najlepszą cenę.

        Posiadamy nowoczesne narzędzia prezentacji ofert

        dedykowana Przestrzeń Klienta z ofertami dopasowanymi do Twoich poszukiwań.

        Oferujemy skuteczną i bezpłatną pomoc w uzyskaniu kredytu

        ograniczymy formalności do minimum i wynegocjujemy najlepsze warunki.