back

Offer number: PAN251249

Bojano

112.2 m2 5 rooms 0/1 floor /m²
Monthly installment:

Estimated loan installment with fixed interest rate, 20% down payment and repayment period of 30 years.

calculate installment

Description

Piękny dom w zielonej okolicy !

DOM: 2 kondygnacyjny , jasny, przestronny, ustawny, 5 -pokojowy, wolnostojący w Bojanie. Dom o powierzchni użytkowej 128 m2 – w bryle budynku wliczony jest garaż 16 m2. W jego skład wchodzą:
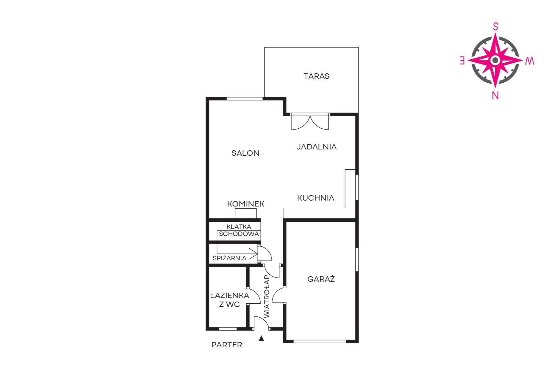
PARTER (60,6 m2):
– duży salon z kuchnią i jadalnią 32,2 m2 + wyjście na taras z ogrodem
– spiżarnia ok. 2 m2
– łazienka z WC 3,6 m2
– hol 2,7 m2
– wiatrołap 4,6 m2
– garaż z ogrzewaniem podłogowym (16,4 m2)
– przed budynkiem miejsce parkingowe na 5 samochodów

I PIĘTRO (51,6 m2):
– hol
– 3 x sypialnia (16,2 m2; 15,5 m2; 10,1 m) w tym jedna z garderobą
– gabinet do pracy ok. 4 m2
– duża łazienka z WC (pralnia w zabudowie) ok. 8 m2

PODDASZE: otwarta przestrzeń do przechowywania rzeczy ok.30 m2

Dom ten funkcjonuje w nowoczesnej technologii, ogrzewanie i system podlewania trawnika sterowane są elektronicznie. Elementy w środku i na zewnątrz wykonane są z najwyższej jakości materiałów, co daje trwałość użytkowania na lata. W całym domu mamy ogrzewanie podłogowe. Wszystko razem sprawia, że jest to dom komfortowy, nowoczesny, elegancki i gotowy do zamieszkania bez ponoszenia dodatkowych kosztów !

INFORMACJE DODATKOWE:
– kanalizacja i woda miejskie
– termin wydania do miesiąca
– ogrzewanie gazowe
– parter można ogrzać kominkiem

BUDYNEK: Dom zaprojektowany przez architekta i oddany do użytku w 2021 roku. Wybudowany z silikatu i ocieplony styropianem o bardzo dobrych parametrach cieplnych. Budynek jest pod nadzorem kamer z system alarmowym, co podnosi poziom bezpieczeństwa. Dach pokryty dachówką ceramiczną, od południa dodatkowo panele fotowoltaiczne na gwarancji.

DZIAŁKA: płaska o powierzchni 496 m2. Wjazd na posesję przez szeroką bramę, otwieraną na pilot. Cały teren ogrodzony płotem z fundamentem. Wjazd wyłożony brukiem. Na terenie działki trawa, drzewa i krzewy ozdobne. Na tyłach budynku jest duży taras z pergolą otoczony urokliwym ogrodem ! W nocy całość jest doświetlona klimatycznymi lampami. Ogród posiada zraszacze wynurzalne, co ułatwia codzienną pielęgnację ! Widok z salonu i tarasu sprawia że chce się usiąść i delektować tym co karmi nasze oczy.

OKOLICA: Mieszkanie w Bojanie to świetny wybór dla rodzin z dziećmi, które cenią spokój i bliskość natury. Jest tu wiele terenów rekreacyjnych, idealnych do aktywnego wypoczynku. W okolicy działają dobrze oceniane szkoły i przedszkola. To także spokojna i bezpieczna okolica z dobrze rozwiniętą infrastrukturą handlowo usługową: sklepy, gastronomia, mechanik, fryzjer, siłownia, stomatolog itp) . Jest też ośrodek szkolenia kierowców na prawo jazdy. 

KOMUNIKACJA: Bojano jest bardzo dobrze skomunikowane z Trójmiastem. Dojazd do Gdyni samochodem zajmuje około 15 minut. Dla osób korzystających z transportu publicznego dostępne są regularne połączenia autobusowe linii 191, która łączy Bojano z Gdynią. 

Zapraszamy na prezentację !

Detailed information

Location

Bojano

Building type

Semi-detached

Ownership

Other

Area

112.2 m2

Plot Area

496 m2

Rooms

5

Bathrooms

2

Toilets

2

Year of construction

2021

Floor

0/1

Balcony/terrace

Yes

Garage/parking place

Yes

Condition

Very good

Heating

Gas

Price per m²

Map

I need more information
  • I need more information
  • I want to schedule a viewing

    Information clause

      Preferred meeting time
      • 9:00
      • 10:00
      • 11:00
      • 12:00
      • 13:00
      • 14:00
      • 15:00
      • 16:00
      • 17:00
      • 18:00
      Information clause

        Other forms of purchase

        Property type*
        • Apartment
        • House
        • Plot
        • Komercja
        • Garage
        Information clause

        Loan installment calculator

        Calculate your approximate mortgage payment

        lat

        Estimated loan installment with fixed interest rate, 20% down payment and repayment period of 30 years.

        Monthly installment:

        Calculate your borrowing capacity with our Mortgage Advisor

        Check your creditworthiness

        Buy with us. Why is it worth it?

        0% commission from the Buyer

        No additional or hidden costs

        * applies to offers marked with the Buy without commission sign

        Similar offers